
Bourn Road, Caxton, Cambridge, Cambridgeshire, CB23

- PROPERTY TYPE
Detached
- BEDROOMS
4
- BATHROOMS
4
- SIZE
2,944 sq ft
274 sq m
- TENUREDescribes how you own a property. There are different types of tenure - freehold, leasehold, and commonhold.Read more about tenure in our glossary page.
Freehold
Key features
- Built in 2023 to an exceptionally high standard
- Open views over fields
- Private gated driveway and garaging
- Landscaped gardens
- Good transport links in to Cambridge
- New Build Guarantee
- EPC Rating = B
Description
Description
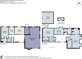
This exceptional individual property finished construction in 2023 and was built by the current owners to an extremely high standard, offering open views over fields and a high level of privacy. The property has been designed with future proofing in mind with balanced accommodation set over two floors, under a pitch tiled roof. Electric gates lead onto the driveway which offers a generous amount of parking as well as a detached double garage with two electric doors. The front door leads into a spacious vaulted entrance hall that leads to all ground floor accommodation. The centre piece of this stunning home is the open plan sitting room/kitchen, a brilliant family area, which offers panoramic views over the fields beyond and air conditioning.
The sitting area is focused around a wood burner creating a warm and inviting space. The bespoke hand crafted kitchen offers an array of wall and floor units all set around a sizable island with its own breakfast bar and incorporates the induction hob and further storage. The kitchen includes a number of built in appliances such as two ovens, coffee machine, wine cooler, dishwasher and fridge/freezer as well a butler sink with Quooker hot water mixer tap. Leading directly off the kitchen is the utility room which offers a generous amount of storage and laundry facilities as well as side access to the gardens. An additional sitting room/snug offers a great addition to the living spaces. The office creates an ideal home working space, located opposite the cloakroom and store room. Completing the ground floor accommodation is a bedroom suite which includes built in wardrobes and an en suite shower room.
Moving up to the first floor is a light and spacious gallied landing which gives access to all of the impressive double bedrooms. The principal bedroom benefits from a dressing room and en suite which comprises of a double walk in shower, stand alone bath, twin sinks and low level WC. Bedroom two also offers a walk in wardrobe and en suite that comprises of a walk in shower, wash basin and low level WC, as well as air conditioning. The final double bedroom completes the first floor accommodation and also offers a walk in wardrobe and en suite which benefits from a panelled bath, wash basin and low level WC.
Outside the stunning landscaped gardens wrap around the property and are enclosed by post and rail fencing. A generous tiered stone terrace, which is bordered by raised beds and a focal water feature, leads directly from the rear of the home and incorporates a barbecue and intimate seating area. Steps lead from the terrace to the lawned area. A large garden store is located to the side of the property near to the access into the utility room.
Location
Caxton is situated approximately 9 miles to the west of Cambridge and approximately 7 miles to the east of St. Neots, and is famous for the Caxton Gibbet. The local amenities include a village church, children’s playground, the No 77 Thai restaurant, a public house and a village hall, which is a hub for community activities. Further recreational and cultural activities can be found in the world famous University City of Cambridge.
There is a post office and shop in the neighbouring village Great Gransden, approximately 3 miles away. There is also a large Morrisons supermarket in Cambourne (approximately 2.7 miles).
Primary schooling is available at Bourn Primary School (approximately 2.2 miles) and is also in the catchment area for Comberton Village College (approximately 6.7 miles). Further schooling is also available in Cambridge for all ages, as well as many reputable independent schools such as The Perse, The Leys and sixth form colleges such as Long Road and Hills Road.
For the commuter, Caxton is conveniently located for journeys into London, the nearest train station being St. Neots, with journeys into London Kings Cross taking from 40 minutes. It is located closest to the A428 which in turn leads to access onto the A14 to the north and the A1.
All distances and times are approximate.
Square Footage: 2,944 sq ft
Brochures
Web DetailsParticulars- COUNCIL TAXA payment made to your local authority in order to pay for local services like schools, libraries, and refuse collection. The amount you pay depends on the value of the property.Read more about council Tax in our glossary page.
- Band: G
- PARKINGDetails of how and where vehicles can be parked, and any associated costs.Read more about parking in our glossary page.
- Yes
- GARDENA property has access to an outdoor space, which could be private or shared.
- Yes
- ACCESSIBILITYHow a property has been adapted to meet the needs of vulnerable or disabled individuals.Read more about accessibility in our glossary page.
- Ask agent
Bourn Road, Caxton, Cambridge, Cambridgeshire, CB23
Add an important place to see how long it'd take to get there from our property listings.
__mins driving to your place
Get an instant, personalised result:
- Show sellers you’re serious
- Secure viewings faster with agents
- No impact on your credit score
Your mortgage
Notes
Staying secure when looking for property
Ensure you're up to date with our latest advice on how to avoid fraud or scams when looking for property online.
Visit our security centre to find out moreDisclaimer - Property reference CAS240284. The information displayed about this property comprises a property advertisement. Rightmove.co.uk makes no warranty as to the accuracy or completeness of the advertisement or any linked or associated information, and Rightmove has no control over the content. This property advertisement does not constitute property particulars. The information is provided and maintained by Savills, Cambridge. Please contact the selling agent or developer directly to obtain any information which may be available under the terms of The Energy Performance of Buildings (Certificates and Inspections) (England and Wales) Regulations 2007 or the Home Report if in relation to a residential property in Scotland.
*This is the average speed from the provider with the fastest broadband package available at this postcode. The average speed displayed is based on the download speeds of at least 50% of customers at peak time (8pm to 10pm). Fibre/cable services at the postcode are subject to availability and may differ between properties within a postcode. Speeds can be affected by a range of technical and environmental factors. The speed at the property may be lower than that listed above. You can check the estimated speed and confirm availability to a property prior to purchasing on the broadband provider's website. Providers may increase charges. The information is provided and maintained by Decision Technologies Limited. **This is indicative only and based on a 2-person household with multiple devices and simultaneous usage. Broadband performance is affected by multiple factors including number of occupants and devices, simultaneous usage, router range etc. For more information speak to your broadband provider.
Map data ©OpenStreetMap contributors.





