Land West Of Hallfield Drive, Easington Village, SR8
- PROPERTY TYPE
Land
- SIZE
Ask agent
Key features
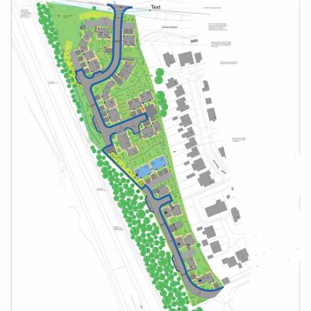
- Development opportunity for 38 units
- Approximately 4.15 acres
- Planning permission DM/22/01768/FPA
- Excellent commuter links
Description
A site with full planning permission with all pre-commencement conditions discharged, for 38 dwellings in a proposed mix of 2, 3 and 4 bedroom homes. The site is located in Easington Village and benefits from great transport links, making it an attractive ready-to-go opportunity. The site is currently used for grazing purposes and extends to 4.15 acres.
The land is situated to the west of Hallfield Drive on the western edge of Easington, close to the A19 road that provides links south to Middlesbrough and North to Tyne and Wear. Easington benefits from good local schools and a range of services and amenities.
Full planning permission was approved subject to S106 5th June 2023, Application No. DM/22/01768/FPA.
IMPORTANT NOTE TO POTENTIAL PURCHASERS & TENANTS:
We endeavour to make our particulars accurate and reliable, however, they do not constitute or form part of an offer or any contract and none is to be relied upon as statements of representation or fact. The services, systems and appliances listed in this specification have not been tested by us and no guarantee as to their operating ability or efficiency is given. All photographs and measurements have been taken as a guide only and are not precise. Floor plans where included are not to scale and accuracy is not guaranteed. If you require clarification or further information on any points, please contact us, especially if you are traveling some distance to view. POTENTIAL PURCHASERS: Fixtures and fittings other than those mentioned are to be agreed with the seller. POTENTIAL TENANTS: All properties are available for a minimum length of time, with the exception of short term accommodation. Please contact the branch for details. A security deposit of at least one month’s rent is required. Rent is to be paid one month in advance. It is the tenant’s responsibility to insure any personal possessions. Payment of all utilities including water rates or metered supply and Council Tax is the responsibility of the tenant in most cases.
NHO240564/2
Brochures
Web DetailsFull Brochure PDFLand West Of Hallfield Drive, Easington Village, SR8
NEAREST STATIONS
Distances are straight line measurements from the centre of the postcode- Horden Station2.5 miles
- Seaham Station3.8 miles
Notes
Disclaimer - Property reference NHO240564. The information displayed about this property comprises a property advertisement. Rightmove.co.uk makes no warranty as to the accuracy or completeness of the advertisement or any linked or associated information, and Rightmove has no control over the content. This property advertisement does not constitute property particulars. The information is provided and maintained by LSL Land & New Homes, Land Nationwide. Please contact the selling agent or developer directly to obtain any information which may be available under the terms of The Energy Performance of Buildings (Certificates and Inspections) (England and Wales) Regulations 2007 or the Home Report if in relation to a residential property in Scotland.
Map data ©OpenStreetMap contributors.




