The Green, Syston, Leicester, LE7
Letting details
- Let available date:
- Now
- Deposit:
- £1,700A deposit provides security for a landlord against damage, or unpaid rent by a tenant.Read more about deposit in our glossary page.
- Furnish type:
- Unfurnished
- PROPERTY TYPE
Commercial Property
- BEDROOMS
1
- BATHROOMS
1
- SIZE
1,313 sq ft
122 sq m
Description
This prime commercial property is situated in the heart of Syston, a vibrant town within the district of Charnwood. Positioned on High Street, the unit benefits from excellent visibility and foot traffic, being just a short walk from the bustling Syston Town Square Shopping Centre. The property is conveniently located near the junction with Melton Road, a key thoroughfare that hosts a variety of well-established national and local retailers, enhancing the area’s commercial appeal. Syston offers a blend of residential and commercial environments, ensuring a steady flow of potential customers and clients.
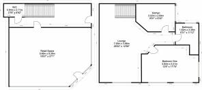
Accommodation
The commercial unit offers a versatile space suitable for a range of business uses, featuring both retail and office areas. On the ground floor, you will find a spacious retail/office area complemented by a small storage room and a WC, providing all the essential facilities for your business operations.
The first floor comprises of a one-bedroom apartment, ideal for owner-occupiers or as an additional work space. The apartment includes a bathroom, a fitted kitchen, and a comfortable lounge area. Both floors benefit from double glazing and gas central heating, ensuring a comfortable environment year-round.
Key Features
- High Visibility Location: Situated on High Street, close to major shopping and commercial areas.
- Flexible Use: Suitable for a variety of business purposes including retail and office use.
- Ground Floor Facilities: Retail/office space, storage area, and WC.
- First Floor Accommodation: One-bedroom apartment with bathroom, kitchen, and lounge.
- Modern Amenities: Double glazing and gas central heating.
- Previous Uses: The property has a history of diverse uses, having served as a shop/workshop for the past 15 years and a hairdresser's before that. Potential tenants can apply for a change of use with the council if a different type of business is desired.
Rateable Value
The rateable value of the property is £8,700. This figure is used by the local council to calculate the business rates bill, but it is not the amount paid in rent or business rates. For more information on how the rateable value impacts your business rates, please refer to your local council’s guidelines.
This commercial unit offers an excellent opportunity for businesses looking to establish themselves in a thriving area with strong community ties and significant commercial activity. Contact us today to arrange a viewing and secure this prime property for your business needs.
Viewings:
To arrange a viewing or obtain more information, please contact us today. This property is expected to attract significant interest.
Contact Details:
Phone:
Email:
While we make every reasonable effort to provide accurate descriptions and content, it is important to be aware of the following guidelines and considerations:
Money Laundering Regulations: Prospective tenants will be requested to provide identification documentation as part of the referencing process. We kindly ask for your cooperation to ensure a smooth and timely tenancy agreement.
Offer or Contract: Please note that these particulars do not form a part or the entirety of an offer or contract.
Guidance Only: The text, photographs, and plans provided are intended for guidance purposes and may not cover all aspects comprehensively.
Room Sizes: Any approximate room sizes provided are for general guidance only. We recommend verifying the dimensions to ensure accuracy and suitability for your needs.
Brochures
Brochure 1Energy Performance Certificates
EPC 1The Green, Syston, Leicester, LE7
NEAREST STATIONS
Distances are straight line measurements from the centre of the postcode- Syston Station0.5 miles
- Sileby Station2.5 miles
- Barrow upon Soar Station4.5 miles
Notes
Disclaimer - Property reference L79053. The information displayed about this property comprises a property advertisement. Rightmove.co.uk makes no warranty as to the accuracy or completeness of the advertisement or any linked or associated information, and Rightmove has no control over the content. This property advertisement does not constitute property particulars. The information is provided and maintained by Weldon Homes Estate Agents, Wigston. Please contact the selling agent or developer directly to obtain any information which may be available under the terms of The Energy Performance of Buildings (Certificates and Inspections) (England and Wales) Regulations 2007 or the Home Report if in relation to a residential property in Scotland.
Map data ©OpenStreetMap contributors.





