
Church View, Sandy Lane, Codsall, Wolverhampton, WV8 1EW

- PROPERTY TYPE
Detached
- BEDROOMS
6
- BATHROOMS
6
- SIZE
Ask agent
- TENUREDescribes how you own a property. There are different types of tenure - freehold, leasehold, and commonhold.Read more about tenure in our glossary page.
Freehold
Description
in a large plot of almost a third of an acre in total in a sought-after South Staffordshire village setting.
Location - The property stands in an outstanding location in a sought after South Staffordshire village. Codsall provides a comprehensive array of local facilities which are more than ample for everyday needs and there is easy access to Wolverhampton. Local rail services run from both Codsall and Bilbrook Stations with direct connections to Birmingham and the M54 is easily accessible facilitating fast access to Shrewsbury, Birmingham and beyond.
The area is well served by schooling with Codsall Community High School being within easy walking distance together with a multitude of further schooling being available nearby.
Description - Church View is a superbly proportioned contemporary house with room sizes of excellent proportions to both the ground and first floor including a ground floor bedroom suite making the property ideal for multi-generational occupancy, a superb flow of living areas and ample bedroom and bathroom provision to the upper floor.
The house was completed in 2023 with all of the works having been carried out to a high standard and many fine, contemporary features throughout. Economic efficiency is provided throughout by infrared central heating and hot water which can be controlled via an app as can the lighting system, cameras and the electronically operated blinds to the ground floor. The property will be sold with the benefit of the remainder of a 10 year guarantee. The property benefits from a 3 phase power supply and battery storage.
The house is finished in a neutral, contemporary fashion with Galleria professional wood flooring to the ground floor and bright, white décor.
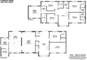
Accommodation - Church View is entered via the RECEPTION HALL which provides a stunning entrance to the residence with a light through aspect with bifold doors to the rear garden, an air conditioning unit and which is a living room in its own right. A staircase with a glazed balustrading rises to the galleried landing above and there is a cloaks and storeroom, a small PRAYER ROOM and a CLOAKROOM with a superb, contemporary finish and fully automated wall hung WC. There is a LOUNGE with windows to the front, up-lit ceiling lighting and a feature end wall with integrated electric fire, recess for a TV and display recesses with a contemporary Venetian plaster finish. The PRINCIPAL LIVING ROOM runs the full depth of the property and has ample space for both lounge and dining areas with a light through aspect and a unique floating diving wall with a coordinating plinth with an inset bio-fuel fire, Venetian plaster finish and openings on either side to the stunning LIVING KITCHEN. There is an extensive array of fitted cabinetry with a contrasting centre island all with marble surfaces, an array of appliances with two double ovens, a combination microwave oven and grill, warming drawer and induction hob with central downward extraction unit, a light through aspect including bifold doors to the garden with skylights above, a twin undermounted sink with Quooker tap and a concealed door leading to the SPICE KITCHEN AND LAUNDRY. There are a full range of wall and base mounted cabinetry, a stainless steel gas hob and sink, space for a tumble dryer and washing machine, a garden door and a door into a STORE / GYM with a roller shutter door to the drive. A door from the reception hall opens into the ground floor BEDROOM SUITE with bedroom number six with a decorative end wall with contemporary panelling concealing a door to a fitted walk in wardrobe and a coordinating concealed door also opening into a well-appointed EN-SUITE SHOWER ROOM with superbly appointed contemporary suite.
A staircase with glazed balustrading rises to the galleried landing above, a picture window to the front and space for seating. The PRINCIPAL SUITE is one of vast proportions with a lobby opening into a DRESSING AREA on one side with hanging rails and shelving and a full BATHROOM EN-SUITE with a superbly arranged layout including a double shower and an oval bath. The bedroom has a light through aspect with windows to both the front and rear and the overall effect is outstanding. The SECOND BEDROOM SUITE has bedroom two which is a large room with a window to the front, a walk in, fitted wardrobe and a well appointed EN-SUITE SHOWER ROOM. The THIRD BEDROOM SUITE has bedroom three which is a large room with a window overlooking the rear garden, contemporary wall panelling and a concealed door to a walk in fitted wardrobe with a coordinating concealed door opening into a well appointed SHOWER ROOM. The FOURTH BEDROOM SUITE has bedroom four which has a generous double bedroom with dressing area with a bank of fitted wardrobes, windows overlooking the rear garden and a well-appointed EN-SUITE SHOWER ROOM. BEDROOM FIVE is a double room with a window to the front and there is a SEPARATE SHOWER ROOM which is well appointed.
Outside - Church View stands in a large plot of approximately 0.3 acres in total with an impressively wide frontage with dual entrance, gated GRAVEL DRIVE providing parking for multiple vehicles.
There is gated access to either side of the property to the substantial REAR GARDEN with a contemporary porcelain paved terrace to the rear of the house with inset gravel beds, a shaped lawn beyond, a further terrace to the side and a maturing, planted laurel hedgerow to the rear.
We are informed by the Vendors that mains water, electricity and drainage area connected, there are solar panels owned by the vendor and the heating is infrared panels under the ceiling.
COUNCIL TAX BAND C – South Staffordshire
POSSESSION Vacant possession will be given on completion.
VIEWING, Please contact the Tettenhall Office.
The property is FREEHOLD.
Broadband – Fibre to the property
Mobile – Ofcom checker shows the four main providers have likely coverage outside
Ofcom provides an overview of what is available, potential purchasers should contact their preferred supplier to check availability and speeds.
Brochures
Church View, Sandy Lane, Codsall, Wolverhampton, WBrochure- COUNCIL TAXA payment made to your local authority in order to pay for local services like schools, libraries, and refuse collection. The amount you pay depends on the value of the property.Read more about council Tax in our glossary page.
- Band: G
- PARKINGDetails of how and where vehicles can be parked, and any associated costs.Read more about parking in our glossary page.
- Driveway
- GARDENA property has access to an outdoor space, which could be private or shared.
- Yes
- ACCESSIBILITYHow a property has been adapted to meet the needs of vulnerable or disabled individuals.Read more about accessibility in our glossary page.
- Lateral living,Level access shower
Church View, Sandy Lane, Codsall, Wolverhampton, WV8 1EW
Add an important place to see how long it'd take to get there from our property listings.
__mins driving to your place
Get an instant, personalised result:
- Show sellers you’re serious
- Secure viewings faster with agents
- No impact on your credit score



Your mortgage
Notes
Staying secure when looking for property
Ensure you're up to date with our latest advice on how to avoid fraud or scams when looking for property online.
Visit our security centre to find out moreDisclaimer - Property reference 33417305. The information displayed about this property comprises a property advertisement. Rightmove.co.uk makes no warranty as to the accuracy or completeness of the advertisement or any linked or associated information, and Rightmove has no control over the content. This property advertisement does not constitute property particulars. The information is provided and maintained by Berriman Eaton, Tettenhall. Please contact the selling agent or developer directly to obtain any information which may be available under the terms of The Energy Performance of Buildings (Certificates and Inspections) (England and Wales) Regulations 2007 or the Home Report if in relation to a residential property in Scotland.
*This is the average speed from the provider with the fastest broadband package available at this postcode. The average speed displayed is based on the download speeds of at least 50% of customers at peak time (8pm to 10pm). Fibre/cable services at the postcode are subject to availability and may differ between properties within a postcode. Speeds can be affected by a range of technical and environmental factors. The speed at the property may be lower than that listed above. You can check the estimated speed and confirm availability to a property prior to purchasing on the broadband provider's website. Providers may increase charges. The information is provided and maintained by Decision Technologies Limited. **This is indicative only and based on a 2-person household with multiple devices and simultaneous usage. Broadband performance is affected by multiple factors including number of occupants and devices, simultaneous usage, router range etc. For more information speak to your broadband provider.
Map data ©OpenStreetMap contributors.





