Maidstone Road, Borough Green, Sevenoaks, Kent, TN15
- PROPERTY TYPE
Land
- SIZE
Ask agent
Key features
- Rare Development Opportunity
- Collection of Outbuildings
- Potential for Residential Dwellings (STPP)
- Parking & Amenity Space
- Vacant Possession
Description
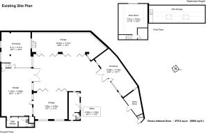
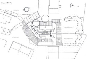
A rare development opportunity to purchase this newly available project in sought after Borough Green. The site was historically a garage for the repair and restoration of classic cars. The barns are now available for re-development, with excellent development potential (STPP), to create four new homes or one large, detached home.
The site is adjacent to Whiffens House, listed and circa 16th century and is on the south side of Maidstone Road, set back from the main road, but close to and convenient for all the local amenities of the village. The opportunity to redevelop these barns and create a courtyard linked community in the grounds of the original Whiffens Farm, brings an element of history and charm to any future development.
The pre-application comprises of 2 schemes:
Scheme 1 for four dwellings 1 No 3 bedroom chalet bungalow, 2 No 2 bedroom houses and 1 No 1 bedroom bungalow, suitable for retired couples and families or first time buyers.
Scheme 2, for one dwelling a luxurious and bespoke 5 bedroom home.
Location
Borough Green is an unclassified English urban community and a civil parish in the borough of Tonbridge and Malling in Kent, England. The central area is situated on the A25 road between Maidstone and Sevenoaks, with the M26 motorway running through it within a mile of the centre.
Directions
From Borough Green & Wrotham Railway Station, (TN15 8AJ), head east on Station Approach towards Wrotham Road, A227. After 250 feet turn right onto Wrotham Road, A227 for 400 feet. Continue straight onto High Street for 0.1miles. Turn left onto Maidstone Road (A25) for 250 feet, then turn right onto Maidstone Road for 100 feet and Fourways Barns is on the right side of the road.
Transport Information
Borough Green & Wrotham Railway Station: 0.2 miles Kemsing Railway Station: 2.6 miles The distances calculated are as the crow flies.
Education
Please check with the local authority as to catchment areas and intake criteria.
Golf Clubs
Wrotham Heath Valley Golf Club: 1.8 miles Wilderness Golf Club: 3.7 miles The London Club: 3.9 miles
Health Clubs
Reynolds Retreat: 0.4 miles St Julians Club: 4.6 miles Dartford Mecure Brands Hatch Health Club: 5.2 miles Nizels Golf & Country Club: 5.9 miles
Useful Information
We recognise that buying a development project is a big commitment and therefore recommend that you visit the local authority websites for more helpful information about the property and local area before proceeding. Some information in these details are taken from third party sources. Should any of the information be critical in your decision making then please contact Fine & Country for verification.
Tenure
The vendor advises us that this property is Freehold. Should you proceed with the purchase of the property your solicitor must verify these details.
Council Tax
We are informed this development project’s council tax band is to be assessed, you should direct all enquiries to Sevenoaks District Council.
Measurements
All measurements are approximate and therefore may be subject to a small margin of error.
Opening Hours
Monday to Saturday 9.00 am – 6.00pm
Ref
Strictly Fine & Country Sevenoaks
Brochures
ParticularsMaidstone Road, Borough Green, Sevenoaks, Kent, TN15
NEAREST STATIONS
Distances are straight line measurements from the centre of the postcode- Borough Green & Wrotham Station0.1 miles
- Kemsing Station2.6 miles
- Bat & Ball Station4.9 miles
Notes
Disclaimer - Property reference SEV200067. The information displayed about this property comprises a property advertisement. Rightmove.co.uk makes no warranty as to the accuracy or completeness of the advertisement or any linked or associated information, and Rightmove has no control over the content. This property advertisement does not constitute property particulars. The information is provided and maintained by Fine & Country, North West Kent. Please contact the selling agent or developer directly to obtain any information which may be available under the terms of The Energy Performance of Buildings (Certificates and Inspections) (England and Wales) Regulations 2007 or the Home Report if in relation to a residential property in Scotland.
Map data ©OpenStreetMap contributors.






