
4 bedroom bungalow for sale
Bournemouth Road, Holland on Sea

- PROPERTY TYPE
Bungalow
- BEDROOMS
4
- BATHROOMS
2
- SIZE
Ask agent
- TENUREDescribes how you own a property. There are different types of tenure - freehold, leasehold, and commonhold.Read more about tenure in our glossary page.
Freehold
Key features
- Four Bedrooms
- Separate Annexe Accommodation
- 21'1 Lounge/Diner
- 22'7 Luxury Kitchen/Breakfast Room
- Four Piece Bathroom Suite
- Off Road Parking
- Landscaped Rear Garden
- Tastefully Improved
Description
Double glazed entrance door to:-
Entrance Hall
Laminate flooring, two radiators, storage cupboard, stairs to first floor.
Lounge/Diner 23'1 x 12'9 (7.04m x 3.89m)
Double glazed patio doors to rear, radiator.
Kitchen/Breakfast Room 22'5 x 8'0 (6.83m x 2.44m)
Luxury fitted comprising stainless steel single drainer sink unit with mixer tap set in square edge work surfaces, high gloss base and eye level units, matching display cabinets, spotlights to ceiling, inset gas hob, integrated eye level oven, dishwasher and fridge/freezer, radiator, double glazed window to rear, double glazed French style doors to rear garden.
Ground Floor Bedroom One 11'10 x 11'10 max. (3.61m x 3.61m)
Double glazed window to front, radiator, access to:-
En-Suite Shower Room
Fitted comprising corner shower cubicle with plumbed in shower, vanity wash hand basin with cupboard under, low level w.c., fully tiled walls, tiled flooring, heated towel rail.
Ground Floor Bedroom Two 13'1 into bay x 12'4 (3.99m x 3.76m)
Double glazed bay window to front, radiator.
Ground Floor Bathroom
Luxury four piece suite comprising panel enclosed bath with mixer tap and shower attachment, corner shower cubicle with plumbed in shower, vanity wash hand basin with cupboard under, low level w.c., feature vertical towel rail, fully tiled walls, tiled flooring.
First Floor Landing
Access to all further rooms:-
Bedroom Three
Fitted wardrobes, radiator, double glazed windows to front and rear.
Bedroom Four
Radiator, double glazed windows to front and rear. Door to:-
En-Suite W.C.
Comprising low level w.c., wash hand basin.
Outside
To the front of the property there is block paved driveway providing off street parking together with miniature hedges and bushes, retaining dwarf wall, side access to rear garden.
The rear garden is mainly laid to lawn with well stocked shrubs and trees, paved patio area, decking area.
ANNEXE LIVING AREA 14'7 x 13'3 (4.45m x 4.04m)
Skimmed ceiling, double glazed window to side, double glazed door to front, electric panel heater. Kitchen area comprising single drainer sink unit set in square edge work surfaces with matching base and eye level units. Space for fridge, inset hob, built-in oven and extractor hood, tiled splashbacks.
ANNEXE BEDROOM 10'5 x 8'10 (3.18m x 2.69m)
Skimmed ceiling, double glazed window to side, double glazed door to side, electric panel heater, door to:-
SHOWER ROOM
Modern fitted three piece suite comprising shower cubicle, vanity wash hand basin, low level w.c., double glazed frosted window to side.
ANNEXE GARDEN
Fully enclosed and mainly laid to lawn with timber shed (to remain).
AGENTS NOTE
This property benefits from 16 solar panels which are owned by our vendors and are to be included within the sale.
We have been advised that our vendor receives a quarterly income from these, further details of which can be provided upon request.
Material information for this property:-
Tenure is Freehold.
Council Tax Band D.
EPC Rating D.
Services Connected.
Electricity - Yes.
Gas - Yes.
Water - Yes.
Sewerage type - Mains.
Telephone & Broadband coverage - Unknown. Prospective purchasers should be directed to website Checker.ofcom.org.co.uk to confirm the coverage of mobile phone and broadband for this property.
Any additional property charges - No.
Non standard property features to note - None.
Consumer Protection from Unfair Trading Regulations 2008.
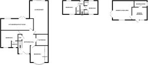
The Agent has not tested any apparatus, equipment, fixtures and fittings or services and so cannot verify that they are in working order or fit for the purpose. References to the Tenure of a Property are based on information supplied by the Seller. The Agent has not had sight of the title documents. A Buyer is advised to obtain verification from their Solicitor. Items shown in photographs are not included unless specifically mentioned within the sales particulars. We can also not confirm that such items are within the ownership of the seller. They may however be available by separate negotiation. Floorplans are for guidance purposes only and therefore not to scale. The agent has assumed relevant planning permissions are in place for any alterations the property has undergone and it is the responsibility of the seller to confirm this via their solicitor.
Money Laundering Regulations 2003 - Any prospective purchasers' will be asked to produce photographic identification and proof of residential documentation once entering into negotiations for a property in order for us to comply with current Legislation.
- COUNCIL TAXA payment made to your local authority in order to pay for local services like schools, libraries, and refuse collection. The amount you pay depends on the value of the property.Read more about council Tax in our glossary page.
- Ask agent
- PARKINGDetails of how and where vehicles can be parked, and any associated costs.Read more about parking in our glossary page.
- Yes
- GARDENA property has access to an outdoor space, which could be private or shared.
- Yes
- ACCESSIBILITYHow a property has been adapted to meet the needs of vulnerable or disabled individuals.Read more about accessibility in our glossary page.
- Ask agent
Bournemouth Road, Holland on Sea
Add an important place to see how long it'd take to get there from our property listings.
__mins driving to your place
Get an instant, personalised result:
- Show sellers you’re serious
- Secure viewings faster with agents
- No impact on your credit score
Your mortgage
Notes
Staying secure when looking for property
Ensure you're up to date with our latest advice on how to avoid fraud or scams when looking for property online.
Visit our security centre to find out moreDisclaimer - Property reference SNR1110321. The information displayed about this property comprises a property advertisement. Rightmove.co.uk makes no warranty as to the accuracy or completeness of the advertisement or any linked or associated information, and Rightmove has no control over the content. This property advertisement does not constitute property particulars. The information is provided and maintained by Stoneridge Estates, Clacton On Sea. Please contact the selling agent or developer directly to obtain any information which may be available under the terms of The Energy Performance of Buildings (Certificates and Inspections) (England and Wales) Regulations 2007 or the Home Report if in relation to a residential property in Scotland.
*This is the average speed from the provider with the fastest broadband package available at this postcode. The average speed displayed is based on the download speeds of at least 50% of customers at peak time (8pm to 10pm). Fibre/cable services at the postcode are subject to availability and may differ between properties within a postcode. Speeds can be affected by a range of technical and environmental factors. The speed at the property may be lower than that listed above. You can check the estimated speed and confirm availability to a property prior to purchasing on the broadband provider's website. Providers may increase charges. The information is provided and maintained by Decision Technologies Limited. **This is indicative only and based on a 2-person household with multiple devices and simultaneous usage. Broadband performance is affected by multiple factors including number of occupants and devices, simultaneous usage, router range etc. For more information speak to your broadband provider.
Map data ©OpenStreetMap contributors.





