Light industrial facility for sale
Gordon Road, Waltham Abbey, Waltham Abbey, Hertfordshire, EN9
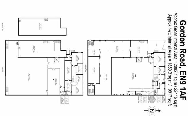
- SIZE AVAILABLE
22,415 sq ft
2,082 sq m
- SECTOR
Light industrial facility for sale
Key features
- Loading Bay
- Car Parking available
- Can be subdivided for open plan
- Vacant possession upon completion
Description
The unit has been divided to accommodate various tenants, although much of this subdivision could be removed to provide more open plan space, or alternatively, subdivided further to accommodate more tenants. See plans for current layout.
The property will be sold with vacant possession upon completion.
Location
Located in the well-established Lea Road industrial area close to its junction with Station Road being a short distance to both Junction 25 and 26 of the M25. The M11 is circa 8 miles distant and the A1(M) 10 miles distant and the M1 17 miles.
Business Rates
Rateable value - £88,500.00 (as taken from Gov.uk)
This is not the amount you will pay. The rateable value is used to calculate your rates bill.
Please refer to the Local Authority for more information on rates
Legal Costs
Each to pay their own legal costs.
Tenure
Freehold
EPC
Energy Rating D Valid until 2032
Via the owners sole agents PSS Commercial.
VAT
Awaiting the status
Brochures
Gordon Road, Waltham Abbey, Waltham Abbey, Hertfordshire, EN9
NEAREST STATIONS
Distances are straight line measurements from the centre of the postcode- Waltham Cross Station0.6 miles
- Theobalds Grove Station1.1 miles
- Enfield Lock Station1.1 miles
Notes
Disclaimer - Property reference 1725FH. The information displayed about this property comprises a property advertisement. Rightmove.co.uk makes no warranty as to the accuracy or completeness of the advertisement or any linked or associated information, and Rightmove has no control over the content. This property advertisement does not constitute property particulars. The information is provided and maintained by Paul Simon Seaton Commercial Estate Agents Ltd, London. Please contact the selling agent or developer directly to obtain any information which may be available under the terms of The Energy Performance of Buildings (Certificates and Inspections) (England and Wales) Regulations 2007 or the Home Report if in relation to a residential property in Scotland.
Map data ©OpenStreetMap contributors.





