1 bedroom block of apartments for sale
Apulia, Lecce, Parabita, Italy
- PROPERTY TYPE
Block of Apartments
- BEDROOMS
1
- BATHROOMS
3
- SIZE
2,691 sq ft
250 sq m
Key features
- 6 Rooms
- Terrace
- TV aerial Autonomous
- Closet
- Fireplace
- Conditioned air
- Telephone system
- Shower
- Wooden frames
- Alarm setup
Description
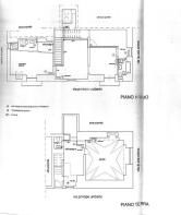
Right at the entrance to the historic center of Parabita, a few meters away from its Angevin Castle, ancient Palace dating back to the early 19th century to be renovated, spread on two levels and for a total of about 220 smq now available for sale.
The property consists of two separate residential units, both with independent entrances but connected from the inside at the same time.
The ground floor is currently used as professional studio, it can be accessed from Piazza Anime and it consists of a large room with vaulted ceilings, two other rooms that can be used for different purposes and one bathroom.
From Via Principe Umberto, through an ancient staircase, you can reach the first floor, also called "piano nobile" (lit. "noble floor") which has two entrance doors. It consists of living room, a double bedroom with en-suite bathroom, two further rooms that could be used for example as an additional bedroom and/or living room, kitchen with fireplace and one bathroom.
From the living room of the first floor, and through an internal staircase, it is possible to reach the large roof terrace where it is possible to create a lovely solarium area to enjoy relaxing moments in the open air in complete privacy, thanks to the height of the surrounding walls that guarantee total privacy.
Between the ground floor and the first floor, along the internal staircase, there is a storage that can be accessed by a small and characteristic door which measures approximately 1.70 meters at the highest point.
All rooms are air-conditioned, equipped with high-speed internet connection and alarm system.
The property, thanks to its favorable geographic position and its architectural value, represents an excellent investment for those wishing to make an investment for touristic purposes as well as to purchase a prestigious private residence.
Parabita is 12km from Gallipoli and its splendid beaches, 35km from Lecce and 80km from Brindisi airport.
Apulia, Lecce, Parabita, Italy
NEAREST AIRPORTS
Distances are straight line measurements- Brindisi - Salento(International)43.0 miles
Advice on buying Italian property
Learn everything you need to know to successfully find and buy a property in Italy.
Notes
This is a property advertisement provided and maintained by Coldwell Banker Gruppo Bodini, Italia (reference 280856_183285201001743) and does not constitute property particulars. Whilst we require advertisers to act with best practice and provide accurate information, we can only publish advertisements in good faith and have not verified any claims or statements or inspected any of the properties, locations or opportunities promoted. Rightmove does not own or control and is not responsible for the properties, opportunities, website content, products or services provided or promoted by third parties and makes no warranties or representations as to the accuracy, completeness, legality, performance or suitability of any of the foregoing. We therefore accept no liability arising from any reliance made by any reader or person to whom this information is made available to. You must perform your own research and seek independent professional advice before making any decision to purchase or invest in overseas property.





