3 bedroom semi-detached house for sale
Glasneven, Dublin, Ireland
- PROPERTY TYPE
Semi-Detached
- BEDROOMS
3
- BATHROOMS
1
- SIZE
1,195 sq ft
111 sq m
Key features
- Close to all local amenities
- Fitted wardrobes
- Excellent Bus Service
- Schools Nearby
- Large rear enclosed garden
- Featured fire place
- Master en-suite
- Ideal for Families
Description
MOST SOUGHT AFTER ENCLAVE OF MATURE HOMES
WEST FACING BACK GARDEN
EARLY VIEWING STRONGLY ADVISED
A great home with amazing potential..
Multi Award Winning Team Patrick Leonard The D. 11 Property Specialists are truly delighted to present this family home and site to the D. 11 property market. Properties offering spacious proportions together with a large site are rare to come to open market.
No. 32 is sure to impress first time buyers, families, investors, property developers and parties trading up alike.
Cedarwood Park is a most sought after mature address adjacent to a wealth of local amenities offering complete privacy and seclusion yet beside every conceivable amenity.
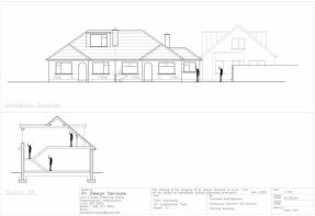
The extra spacious floor plan of the existing bungalow consists of: Hallway, living room, dining room, kitchen, bathroom and 3 bedrooms. The energy rating for this home is G.
The very spacious floor plan of the proposed property will consist of: Hallway, living room, kitchen / dining / family room, utility room, downstairs wet room and downstairs bedroom. Upstairs there is a landing, 2 large bedrooms to include primary en suite and family bathroom.
To the front is a private driveway leading to a side entrance. To the rear of each property is a large west facing garden.
The area is also serviced by excellent bus routes making the city most accessible.
There are a wealth of amenities on your doorstep to include: Shops, parks, church, recreational facilities and sports clubs.
The property falls into an excellent catchment of both primary and secondary schools, and DCU is within a 20 minute walk.
Finglas Village and The Charlestown Shopping Centre to include the ODEON Cinema together with IKEA are all close by.
Early viewing is strongly advised.
Glasneven, Dublin, Ireland
NEAREST AIRPORTS
Distances are straight line measurements- Dublin(International)3.4 miles
- Belfast(International)88.5 miles
- Waterford(International)89.9 miles
Advice on buying Irish property
Learn everything you need to know to successfully find and buy a property in Ireland.
Notes
This is a property advertisement provided and maintained by Leonard Homes Limited, Leonard Homes (reference 32_Cedarwood_Park) and does not constitute property particulars. Whilst we require advertisers to act with best practice and provide accurate information, we can only publish advertisements in good faith and have not verified any claims or statements or inspected any of the properties, locations or opportunities promoted. Rightmove does not own or control and is not responsible for the properties, opportunities, website content, products or services provided or promoted by third parties and makes no warranties or representations as to the accuracy, completeness, legality, performance or suitability of any of the foregoing. We therefore accept no liability arising from any reliance made by any reader or person to whom this information is made available to. You must perform your own research and seek independent professional advice before making any decision to purchase or invest in overseas property.





