3 bedroom detached bungalow for sale
Sunnymead, Keynsham, Bristol

- PROPERTY TYPE
Detached Bungalow
- BEDROOMS
3
- BATHROOMS
1
- SIZE
Ask agent
- TENUREDescribes how you own a property. There are different types of tenure - freehold, leasehold, and commonhold.Read more about tenure in our glossary page.
Freehold
Key features
- Bungalow
- Detached
- Entrance hallway
- 'L shaped' Lounge/Dining room
- Kitchen
- Three bedrooms
- Shower room
- Gardens
- Garage
- No onward chain
Description
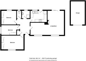
Internally all accommodation is arranged over a single storey making it an ideal purchase for those planning for the future or with additional mobility needs. Once inside you are greeted by a spacious entrance hall with built in storage cupboard, loft access and doors leading to the remaining accommodation, this comprises of an 'L shaped' lounge/dining room measuring 7.4m x 5.6m ('24.3 x 18.4'). A double galley style kitchen, three well balanced bedrooms, a modern shower room and a separate WC. Externally the home sits within a delightful plot which to the front comprises of two large stone chipping areas, well stocked flower beds and a driveway that leads to a detached garage and onto the rear garden. The rear garden is of a sunny south easterly aspect and enjoys a level lawn, a generous patio, several small trees, well stocked flower beds and a greenhouse.
This delightful bungalow has been well cared for by the current owner and could be quite happily enjoyed in its current condition, while equally it offers a great amount of potential for somebody who wishes to reconfigure to their individual taste.
Interior -
Ground Floor - Double glazed front door.
Entrance Hallway - 3.4m x 2.6m (11'1" x 8'6" ) - Access to loft via hatch, built in storage cupboard, radiator, power points. Doors leading to rooms.
Lounge/Dining Room - 7.4m x 5.6m (24'3" x 18'4" ) - to maximum points. An 'L shaped' room with two large double glazed windows to front aspect and double glazed patio doors to the rear aspect that leads to the rear garden, feature gas flame effect fireplace with stone surround, radiators, power points, landline telephone point.
Kitchen - 3m x 2.6m (9'10" x 8'6" ) - Double glazed window to rear aspect overlooking rear garden, obscured double glazed door to rear aspect providing access to rear garden, kitchen comprising range of matching wall and base units with roll top work surfaces, bowl and a quarter stainless steel sink with mixer tap over, integrated double electric oven with four ring gas hob and extractor fan over, space and plumbing for washing machine, slimline dishwasher and space and power for upright fridge/freezer. Wall mounted gas combination boiler, power points, tiled splashbacks to all wet areas.
Bedroom One - 4.7m x 3.1m (15'5" x 10'2" ) - Double glazed window to front aspect, one separate built in double wardrobe and one triple wardrobe, radiator, power points.
Bedroom Two - 3.3m x 3.1m (10'9" x 10'2" ) - Double glazed window to rear aspect overlooking rear garden, built in triple wardrobe, radiator, power points.
Bedroom Three - 3.5m x 2.1m (11'5" x 6'10" ) - Double glazed window to side aspect, built in double wardrobe, radiator, power points.
Shower Room - 1.8m x 1.7m (5'10" x 5'6" ) - Obscured double glazed window to rear aspect, two piece suite comprising pedestal wash hand basin and walk in shower cubicle with electric shower over, heated towel rail, extractor fan, tiled splashbacks to all wet areas.
Wc - 1.8m x 1m (5'10" x 3'3" ) - Obscured double glazed window to rear aspect, low level WC, tiled splashbacks to all wet areas.
Exterior -
Front Of Property - Low maintenance front garden mainly laid to stone chippings with wall and shrub boundaries, well stocked flower beds, path leading to front door, drive leading to car port and garage and providing gated access to rear garden.
Rear Garden - To a sunny south easterly aspect, mainly laid to a level lawn with a generous patio, wall and fenced boundaries, well stocked flower beds, several small trees, vegetable plot, greenhouse, pedestrian access to garage.
Garage - 5.6m x 2.9m (18'4" x 9'6" ) - Accessed via up and over door with pedestrian door to the rear garden, window to side aspect leading to rear garden benefitting from power and lighting.
Tenure - This property is freehold.
Agent Note - Prospective purchasers are to be aware that this property is in council tax band E according to website. Probate has been applied for.
To help you with your purchasing decision we have supplied information and links for guidance so you can satisfy yourself that the property is suitable for you.
Mobile & Broadband
Flood Risk
Coal Mining and Conservation Areas
Find conservation areas | Bath and North East Somerset Council (bathnes.gov.uk)
Asbestos was used as a building material in many properties built from the 1930’s through to approximately the year 2000.
Brochures
Sunnymead, Keynsham, BristolBrochure- COUNCIL TAXA payment made to your local authority in order to pay for local services like schools, libraries, and refuse collection. The amount you pay depends on the value of the property.Read more about council Tax in our glossary page.
- Band: E
- PARKINGDetails of how and where vehicles can be parked, and any associated costs.Read more about parking in our glossary page.
- Yes
- GARDENA property has access to an outdoor space, which could be private or shared.
- Yes
- ACCESSIBILITYHow a property has been adapted to meet the needs of vulnerable or disabled individuals.Read more about accessibility in our glossary page.
- Ask agent
Sunnymead, Keynsham, Bristol
Add an important place to see how long it'd take to get there from our property listings.
__mins driving to your place
Get an instant, personalised result:
- Show sellers you’re serious
- Secure viewings faster with agents
- No impact on your credit score
Your mortgage
Notes
Staying secure when looking for property
Ensure you're up to date with our latest advice on how to avoid fraud or scams when looking for property online.
Visit our security centre to find out moreDisclaimer - Property reference 33472572. The information displayed about this property comprises a property advertisement. Rightmove.co.uk makes no warranty as to the accuracy or completeness of the advertisement or any linked or associated information, and Rightmove has no control over the content. This property advertisement does not constitute property particulars. The information is provided and maintained by Davies & Way, Keynsham. Please contact the selling agent or developer directly to obtain any information which may be available under the terms of The Energy Performance of Buildings (Certificates and Inspections) (England and Wales) Regulations 2007 or the Home Report if in relation to a residential property in Scotland.
*This is the average speed from the provider with the fastest broadband package available at this postcode. The average speed displayed is based on the download speeds of at least 50% of customers at peak time (8pm to 10pm). Fibre/cable services at the postcode are subject to availability and may differ between properties within a postcode. Speeds can be affected by a range of technical and environmental factors. The speed at the property may be lower than that listed above. You can check the estimated speed and confirm availability to a property prior to purchasing on the broadband provider's website. Providers may increase charges. The information is provided and maintained by Decision Technologies Limited. **This is indicative only and based on a 2-person household with multiple devices and simultaneous usage. Broadband performance is affected by multiple factors including number of occupants and devices, simultaneous usage, router range etc. For more information speak to your broadband provider.
Map data ©OpenStreetMap contributors.






