Apulia, Brindisi, Brindisi, Italy
- PROPERTY TYPE
Detached
- BEDROOMS
4
- BATHROOMS
1
- SIZE
1,109 sq ft
103 sq m
Key features
- 6 Rooms
- Terrace 75 m²
- Conditioned air
- Shower
- Wooden frames
- Views
Description
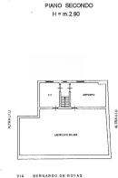
A comfortable internal staircase leads to the second floor where there are two more rooms (28 m2 in total), with access to the terrace on the same level (75 m2) plus an additional solar area with a panoramic view of the eastern inlet of the port.
The property lends itself to various uses: main residence, accommodation facility (B&B or holiday home) or studio.
NB
There is the possibility of selling separately the 2 apartments on the ground floor that complete the building, namely 1 studio flat with star vault (approximately 30 m2) and 1 two-room flat with star vault (approximately 50 m2).
Apulia, Brindisi, Brindisi, Italy
NEAREST AIRPORTS
Distances are straight line measurements- Brindisi - Salento(International)1.6 miles
- Bari Palese(International)71.4 miles
Advice on buying Italian property
Learn everything you need to know to successfully find and buy a property in Italy.
Notes
This is a property advertisement provided and maintained by Coldwell Banker Gruppo Bodini, Italia (reference 280856_185251401002727) and does not constitute property particulars. Whilst we require advertisers to act with best practice and provide accurate information, we can only publish advertisements in good faith and have not verified any claims or statements or inspected any of the properties, locations or opportunities promoted. Rightmove does not own or control and is not responsible for the properties, opportunities, website content, products or services provided or promoted by third parties and makes no warranties or representations as to the accuracy, completeness, legality, performance or suitability of any of the foregoing. We therefore accept no liability arising from any reliance made by any reader or person to whom this information is made available to. You must perform your own research and seek independent professional advice before making any decision to purchase or invest in overseas property.






