
Apartment 1, 1 Sion Hill Place, Bath, Somerset, BA1

- PROPERTY TYPE
Duplex
- BEDROOMS
2
- BATHROOMS
2
- SIZE
1,510 sq ft
140 sq m
Key features
- Just two apartments now available
- 2 bedroom duplex over ground and lower ground
- Private front lightwell
- Grade 1 listed Georgian townhouse
- Five spacious residences only
- Comprehensively refurbished throughout
- 10 year warranty on each apartment
- Share of freehold tenure
- Lift access from ground through to third floors
Description
Description
Apartment Description
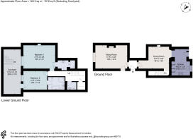
Apartment 1 is a two bedroom apartment spanning ground and lower ground floors of 1 Sion Hill Place. Entered on the ground floor, there is a grand reception room with fireplace, dining room with a further dramatic fireplace which in turn leads into a kitchen with partially glassed extension.
The tranquil lower floor has two en suite bedrooms overlooking a private courtyard. This floor also features a guest toilet and utility room.
1 Sion Hill Place
This exquisite Georgian property, designed by John Pinch the Elder in 1818, is a hidden gem with all the features of its Grade I listing in a World Heritage city.
Notably larger than its neighbours, No.1 Sion Hill Place was expanded in the 1930s, incorporating the façade of a John Wood the Elder-designed house from 1738, meticulously reconstructed stone by stone.
The interior was redesigned in 1936 for Ernest Cook, grandson of travel pioneer Thomas Cook, using elements from Chesterfield House, Westminster, once the residence of Princess Mary.
Now extensively renovated, the property offers two duplex apartments across the ground and lower floors, one lateral apartment, and a penthouse duplex across the two upper floors.
Entering the property evokes the grandeur of a manor house. The impressive ceiling heights and immaculate detailing greet you immediately upon passing through the grand entrance. Ornate cornices, oversized architraves, and skirting boards showcase unique craftsmanship. The curved stone staircase, with its delicate wrought iron balustrade and elegant curves, continues this high standard of artistry.
Each apartment features a modern kitchen integrated into traditional spaces. Equipped with high quality appliances and designed to complement the original features, these kitchens offer a unique, luxurious look with modern conveniences.
Each apartment, bathed in natural light from large bay windows and offers generous living areas. Original features include cast iron radiators, ceiling mouldings, and sash windows with expansive south-facing views of the adjacent crescent’s grounds akin to an arboretum.
Discover an exquisite collection of two to four bedroom apartments, each meticulously designed to offer a range of luxurious principal suites, some also offering dressing areas.
In harmony with the building’s original charm, the bathrooms and en-suites feature expansive basins, luxurious free-standing baths, elegant quartz countertops, and walk-in showers.
Location
Sion Hill Place, designed by John Pinch in 1818, is one of Bath’s hidden gems. This elegant terrace, praised by Walter Ison for its park-like surroundings and refined architecture, is the last and highest Georgian terrace in Bath.
Ideally located between town and countryside, it offers easy access to rural walks along The Cotswold Way and the city centre via The Approach Golf Course and Royal Victoria Park.
Bath, a World Heritage City, is famous for its Georgian architecture and Roman heritage. It boasts excellent leisure, cultural, and business amenities, along with top-notch schools. The city has good transport links, with regular trains from Bath Spa to London Paddington (75 minutes) and Bristol Temple Meads (15 minutes).
Square Footage: 1,510 sq ft
Directions
- From Queen Square, proceed north up Gay Street.
- Take the first exit along Church Street.
- Pass the turning to The Royal Crescent on your left.
- Continue along Upper Church Street.
- At the junction with Julian Road, turn left.
- Take the fifth turning right up Cavendish Road.
- Just before reaching Winifred’s Lane, bear left onto Sion Hill.
- Immediately turn right up Sion Road.
- As the road forks in front of you, bear left.
- Turn into Sion Hill Place.
Additional Info
Grade 1 Listed
Estimated annual management costs
The reservation fee is £2,000. 28-day exchange of contracts required from receipt of draft papers, with 10% deposit payable upon exchange of contracts.
Brochures
Web Details- COUNCIL TAXA payment made to your local authority in order to pay for local services like schools, libraries, and refuse collection. The amount you pay depends on the value of the property.Read more about council Tax in our glossary page.
- Band: TBC
- PARKINGDetails of how and where vehicles can be parked, and any associated costs.Read more about parking in our glossary page.
- Permit,Residents
- GARDENA property has access to an outdoor space, which could be private or shared.
- Yes
- ACCESSIBILITYHow a property has been adapted to meet the needs of vulnerable or disabled individuals.Read more about accessibility in our glossary page.
- Ask agent
Energy performance certificate - ask agent
Apartment 1, 1 Sion Hill Place, Bath, Somerset, BA1
Add an important place to see how long it'd take to get there from our property listings.
__mins driving to your place
Affordability
Get an instant, personalised result:
- Show sellers you’re serious
- Secure viewings faster with agents
- No impact on your credit score
Notes
Staying secure when looking for property
Ensure you're up to date with our latest advice on how to avoid fraud or scams when looking for property online.
Visit our security centre to find out moreDisclaimer - Property reference BDS240055. The information displayed about this property comprises a property advertisement. Rightmove.co.uk makes no warranty as to the accuracy or completeness of the advertisement or any linked or associated information, and Rightmove has no control over the content. This property advertisement does not constitute property particulars. The information is provided and maintained by Savills New Homes, Bath. Please contact the selling agent or developer directly to obtain any information which may be available under the terms of The Energy Performance of Buildings (Certificates and Inspections) (England and Wales) Regulations 2007 or the Home Report if in relation to a residential property in Scotland.
*This is the average speed from the provider with the fastest broadband package available at this postcode. The average speed displayed is based on the download speeds of at least 50% of customers at peak time (8pm to 10pm). Fibre/cable services at the postcode are subject to availability and may differ between properties within a postcode. Speeds can be affected by a range of technical and environmental factors. The speed at the property may be lower than that listed above. You can check the estimated speed and confirm availability to a property prior to purchasing on the broadband provider's website. Providers may increase charges. The information is provided and maintained by Decision Technologies Limited. **This is indicative only and based on a 2-person household with multiple devices and simultaneous usage. Broadband performance is affected by multiple factors including number of occupants and devices, simultaneous usage, router range etc. For more information speak to your broadband provider.
Map data ©OpenStreetMap contributors.





