Barroose Eco House, Barroose Road, Baldrine, IM4 6AR
- PROPERTY TYPE
Plot
- BEDROOMS
4
- BATHROOMS
8
- SIZE
Ask agent
Description
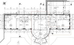
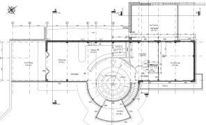
Cowley Groves are delighted to offer this superb building opportunity for sale. The plot currently has foundations and the slab in place for the proposed build, details of which can be seen in the 3D CAD render images and the proposed plans which can be found in the 'Floor Plans' section.
The plot measures approximately 2.4 acres in total and offers superb coastal views of Baldrine with distant sea views.
The approved planning permission is for a contemporary environmentally friendly eco house, which would offer solar ground source heating, passive solar gain design, natural stack ventilation, and wind-generated electricity. Two plans can be found in the floor plans section of this advert, as a second permission has since been approved to add a swimming pool, Jacuzzi, steam room, sauna, bar and roof terrace above.
For more information please contact Cowley Groves on or email .
Directions
Travelling from Douglas, continue north up the coast through Onchan. Upon entering Baldrine, continue past the clock tower at the entrance to Baldrine Park, before turning left a short distance afterwards onto Baldrine Road. Continue over the tram lines and travel along the country line for approximately 800m, before turning left. The entrance to the development site can be found a short distance along on the right hand side, clearly identified by our For Sale board.
Barroose Eco House, Barroose Road, Baldrine, IM4 6AR
NEAREST STATIONS
Distances are straight line measurements from the centre of the postcode- Nethertown Station38.8 miles
Notes
Disclaimer - Property reference 4287. The information displayed about this property comprises a property advertisement. Rightmove.co.uk makes no warranty as to the accuracy or completeness of the advertisement or any linked or associated information, and Rightmove has no control over the content. This property advertisement does not constitute property particulars. The information is provided and maintained by Cowley Groves, Douglas. Please contact the selling agent or developer directly to obtain any information which may be available under the terms of The Energy Performance of Buildings (Certificates and Inspections) (England and Wales) Regulations 2007 or the Home Report if in relation to a residential property in Scotland.
Map data ©OpenStreetMap contributors.






