
Wisbech Road, Outwell, Wisbech, PE14
- PROPERTY TYPE
Plot
- BEDROOMS
3
- BATHROOMS
2
- SIZE
Ask agent
Key features
- Building Plot
- Planning Ref: 23/02025/F
- Detached Home with 3 Bedrooms
Description
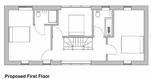
Full planning permission has been granted for the construction of a 3 bedroom detached property following the demolition of this former industrial unit.
The property is positioned within the heart of the small Village of Outwell, in a location that is set back from the road. Its new design suggests an open-plan living area to the ground floor along with 3 bedrooms (ensuite to master) and family bathroom upstairs. Parking is positioned to the front along with a generous garden to the rear. There is electricity on the plot and it is on mains drainage/sewerage.
Wisbech Road, Outwell, Wisbech, PE14
NEAREST STATIONS
Distances are straight line measurements from the centre of the postcode- Downham Market Station5.6 miles
Notes
Disclaimer - Property reference 28373884. The information displayed about this property comprises a property advertisement. Rightmove.co.uk makes no warranty as to the accuracy or completeness of the advertisement or any linked or associated information, and Rightmove has no control over the content. This property advertisement does not constitute property particulars. The information is provided and maintained by Morris Armitage, Downham Market. Please contact the selling agent or developer directly to obtain any information which may be available under the terms of The Energy Performance of Buildings (Certificates and Inspections) (England and Wales) Regulations 2007 or the Home Report if in relation to a residential property in Scotland.
Map data ©OpenStreetMap contributors.








