Lombardy, Como, Como, Italy
- PROPERTY TYPE
Apartment
- BEDROOMS
1
- BATHROOMS
1
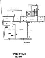
- SIZE
721 sq ft
67 sq m
Key features
- Entrance hall
- Energy efficient doors/windows
- Shower
- Easy access to main roads
- Easy access to highway
- Next to green area
- Shutters, electric
- Investment opportunity
- Open plan
- Roller blinds
Description
Como is renowned for its stunning lake views, historic architecture, and vibrant culture. The area offers a variety of shops, cafes, and restaurants, all within walking distance. For those who travel frequently, the apartment is conveniently located close to the highway, providing easy access to surrounding regions.
Lombardy, Como, Como, Italy
NEAREST AIRPORTS
Distances are straight line measurements- Milano (Malpensa)(International)21.3 miles
- Linate(Local)26.1 miles
- Città di Torino(International)80.5 miles
- Villafranca Veronese(International)92.0 miles
- Cristoforo Colombo(International)96.5 miles
Advice on buying Italian property
Learn everything you need to know to successfully find and buy a property in Italy.
Notes
This is a property advertisement provided and maintained by Sara Gregoria Cilia Immobililare, Holiday Property Solutions (reference 1536) and does not constitute property particulars. Whilst we require advertisers to act with best practice and provide accurate information, we can only publish advertisements in good faith and have not verified any claims or statements or inspected any of the properties, locations or opportunities promoted. Rightmove does not own or control and is not responsible for the properties, opportunities, website content, products or services provided or promoted by third parties and makes no warranties or representations as to the accuracy, completeness, legality, performance or suitability of any of the foregoing. We therefore accept no liability arising from any reliance made by any reader or person to whom this information is made available to. You must perform your own research and seek independent professional advice before making any decision to purchase or invest in overseas property.






