
Fortune Lane, Elstree, Borehamwood, Hertfordshire, WD6
- PROPERTY TYPE
Plot
- SIZE
Ask agent
Key features
- Planning granted
- Exclusive location
- No onward chain
- CIL paid by current owner
- Perfect for developers
- 0.79 acre plot
Description
Description
Situated in a convenient location approximately 0.3 miles from Elstree high street, this plot presents a rare opportunity to create a bespoke detached family home.
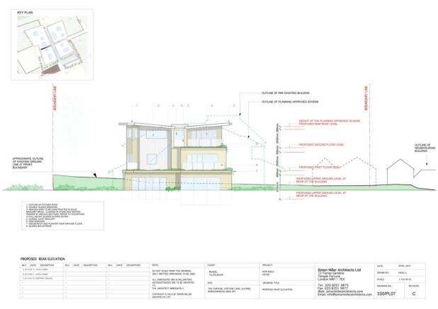
The plot extends to 0.79 acres in total, with planning permission already in place for a new detached eight bedroom dwelling and the CIL already settled by the current owner. Full details can be found on the Hertsmere Borough Council planning website using reference 14/1456/FUL.
The current planning permission is for a property totaling an impressive 7500 square feet, including eight bedrooms each with an en suite bathroom. With accommodation set across four floors, the lower ground floor comprises an indoor swimming pool, cinema room and games room. On the ground floor would be a large kitchen/dining/family room, as well as a formal dining room, separate sitting room and an additional study. The first and second floors house the bedrooms and en suite bathrooms, with balconies and terraces to some rooms.
Externally, there is ample space for parking for multiple vehicles, as well as potential to create extensive landscaped gardens.
An enticing proposition for developers, the previous property has already been demolished and the current owner has settled the CIL for the construction of the new house, offering a smooth and convenient transition for prospective buyers.
AGENTS NOTE - The images used in the marketing of this property are computer generated.
Location
Elstree offers a range of shops and restaurants, and the Atria Watford shopping centre is approximately 5 miles distant. Further amenities are available in nearby Borehamwood, including large supermarkets and schools for all ages.
There is easy access to the national motorway network via the M1, and the Elstree & Borehamwood station provides Thameslink trains to central London.
Acreage: 0.79 Acres
Brochures
Web DetailsParticularsFortune Lane, Elstree, Borehamwood, Hertfordshire, WD6
NEAREST STATIONS
Distances are straight line measurements from the centre of the postcode- Elstree & Borehamwood Station1.0 miles
- Stanmore Station1.6 miles
- Edgware Station2.1 miles
Notes
Disclaimer - Property reference NOS240041. The information displayed about this property comprises a property advertisement. Rightmove.co.uk makes no warranty as to the accuracy or completeness of the advertisement or any linked or associated information, and Rightmove has no control over the content. This property advertisement does not constitute property particulars. The information is provided and maintained by Savills, Rickmansworth. Please contact the selling agent or developer directly to obtain any information which may be available under the terms of The Energy Performance of Buildings (Certificates and Inspections) (England and Wales) Regulations 2007 or the Home Report if in relation to a residential property in Scotland.
Map data ©OpenStreetMap contributors.





