Setúbal, Sesimbra, Portugal
- PROPERTY TYPE
Land
- SIZE
Ask agent
Description
The project is approved, and construction can commence immediately!
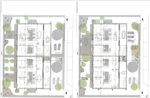
It involves the construction of two houses that could, with a small modification, also be transformed into a single one-story residence with five or six bedrooms.
The concept devised by the architects is of a very fluid and flexible space that allows for various layouts with creativity.
The interiors are spacious and well-connected, featuring a central fireplace, an open-concept social area, and a meticulously designed kitchen to enhance natural light and ventilation.
The outdoor space, covering six hundred and seventy-four square meters of land, offers multiple possibilities for outdoor amenities, including a terrace with an outdoor kitchen, a barbecue area, a pool, a garden, and parking for two cars. The exterior is experienced from all interior spaces of the residences, allowing the nature to be felt inside the house. The west-facing patio and solarium contribute to creating a harmonious and inviting living environment.
It's worth highlighting the beneficial placement of these lots. The right plot serves as a natural park where no construction is allowed. The treated lots are extremely spacious (Request details in a separate presentation). This unique feature ensures unobstructed and expansive views, providing a peaceful and visually unobstructed environment that enhances the quality of life for future residents.
Seizing this exceptional opportunity means investing in a carefully designed and modern residential project, with easy maintenance in the surroundings of Lagoa de Albufeira, Meco, and Sesimbra, just over thirty minutes from Lisbon Center.
There are various outdoor activities such as Bird watching [ Kite surfing, windsurfing, paddleboarding, foil, surfing, bodyboarding, skimboarding, and mountain biking trails where you can explore and enjoy the pine forest area.
The Meco Beach and the town of Sesimbra offer seafood and fresh fish restaurants, providing a unique gastronomic experience.
Please ask for further details!
Setúbal, Sesimbra, Portugal
NEAREST AIRPORTS
Distances are straight line measurements- Lisbon(International)22.1 miles
Advice on buying Portuguese property
Learn everything you need to know to successfully find and buy a property in Portugal.
Notes
This is a property advertisement provided and maintained by Portugal Sotheby's International Realty, Lisboa Centro (reference 103240002) and does not constitute property particulars. Whilst we require advertisers to act with best practice and provide accurate information, we can only publish advertisements in good faith and have not verified any claims or statements or inspected any of the properties, locations or opportunities promoted. Rightmove does not own or control and is not responsible for the properties, opportunities, website content, products or services provided or promoted by third parties and makes no warranties or representations as to the accuracy, completeness, legality, performance or suitability of any of the foregoing. We therefore accept no liability arising from any reliance made by any reader or person to whom this information is made available to. You must perform your own research and seek independent professional advice before making any decision to purchase or invest in overseas property.




