Buildings at Gatehouse Farm, Middleton, Sudbury, Suffolk, CO10
- SIZE
Ask agent
- SECTOR
Plot for sale
Key features
- Site approaching 1 acre
- Full planning consent for residential development
- Proposal for 3 individually designed properties
- Close to the market town of Sudbury
Description
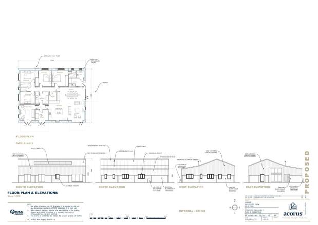
Dwelling 2 - The conversion of a part modern, steel framed building and part traditional brick buildings, to provide a detached four bedroom home extending to approximately 224 m2. The development will provide open-plan accommodation, comprising a kitchen/dining/family room and four double bedrooms (one ensuite). Outside there will be covered parking and a range of outbuildings and stores.
Dwelling 3 - Located to the south of the site, the third dwelling occupies the largest plot and benefits from independent access and a private driveway. The proposed dwelling is a conversion of a Dutch Barn, providing spacious accommodation extending to 283 m2 set over two floors. The ground floor provides an open-plan kitchen and living area, family room, utility and four double bedrooms (two ensuite). To the first floor is a large principal suite with double bedroom, dressing room, bathroom and a hidden terrace.
LOCATION
The site lies between the villages of Henny Street and Middleton, and benefits from views towards the River Stour. The market town of Sudbury lies 2 miles to the north and provides a wide range of services. The nearby branch stations at Sudbury and Bures offer regular rail services into London Liverpool Street, via Marks Tey, with journey times of about 1hr 25 min.
ACCESS
A right of way will be granted over the existing access road, with the buyer and future owners contributing to the cost of maintenance. A secondary access leads directly off Henny Road and serves the third dwelling.
RESTRICTIVE COVENANT
A Restrictive Covenant will be placed on the site for the benefit of the seller's adjoining property. The covenant will restrict the use of the site to a maximum of three private dwellings and ancillary uses, and will specifically preclude any commercial or business use.
SERVICES
Mains water and electricity are either connected to the site or are available nearby. The proposals for drainage are to package treatment plants.
TENURE
Vacant possession will be given on completion of sale.
VAT
The seller has not elected to register the property for VAT and no VAT will be chargeable on the sale price.
LOCAL AUTHORITY
Braintree District Council
Development Management
Causeway House
Bocking End
Braintree
CM7 9HB
Tel:
Email:
TERMS
Offers in the region of £850,000 are invited for the freehold interest.
Brochures
Buildings at Gatehouse Farm, Middleton, Sudbury, Suffolk, CO10
NEAREST STATIONS
Distances are straight line measurements from the centre of the postcode- Sudbury Station1.2 miles
- Bures Station3.6 miles
Notes
Disclaimer - Property reference A393. The information displayed about this property comprises a property advertisement. Rightmove.co.uk makes no warranty as to the accuracy or completeness of the advertisement or any linked or associated information, and Rightmove has no control over the content. This property advertisement does not constitute property particulars. The information is provided and maintained by Fenn Wright, Rural, Water & Leisure. Please contact the selling agent or developer directly to obtain any information which may be available under the terms of The Energy Performance of Buildings (Certificates and Inspections) (England and Wales) Regulations 2007 or the Home Report if in relation to a residential property in Scotland.
Map data ©OpenStreetMap contributors.





