
13 Hartwell Road, Roade, NN7
- PROPERTY TYPE
Plot
- SIZE
Ask agent
Key features
- Rarely available building plot in village l;ocation
- Full Planning Permission granted 4/7/2024
- West Northants Council: 2024/1544/FULL
- All mains services available
- Plot 2 – 310 sq mts / 3,336 sq ft
- Flat, level, accessible site
- Popular, central village location
- Community Infrastructure Levy liable with self build exemption
Description
Roade - Roade lies on the A508 which links Northampton to Milton Keynes and is 2 miles south of junction 15 of the M1, 5 miles south of Northampton, 6 miles north east of Towcester, and 12 miles north of Milton Keynes. The village benefits from a recently opened bypass to the west of the village. Train stations can be found at Northampton and Milton Keynes offering services to London Euston.
The village has a pub and several shops in the High Street including a main post office, gift shop, garage and store, chemist, doctors' surgery, primary and secondary schools.
Sporting activities in the area include golf at Collingtree, Silverstone and Whittlebury Hall, country walks and bridleways at Salcey Forest, watersports at Pitsford Reservoir, indoor skiing and snowboarding at the Snozone, Milton Keynes, and of course motor racing at the world famous Silverstone race circuit.
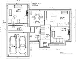
General Description - Situated in the centre of the well serviced & highly regarded village of Roade is this exciting opportunity to purchase a building plot, with full Planning Permission, to construct a substantial, bespoke family homes of 310 sq mts / 3,336 sq ft, laid out over three floors, with five / six bedrooms, four bathrooms, large live-in kitchen, various reception rooms, driveway, double garage and gardens.
Community Infrastructure Levy (Cil) - The site is liable for CIL, we understand the charging rate to be £281.18 per sq mt, therefore the potential liability for Plot 2 is £87,165. There is an opportunity to claim a self-build exemption on one, or other, or both plots, requiring the owner to live in the property for a minimum of three years. We recommend that any purchaser should check the information with the local Council, and their own legal / financial advisors, before making a commitment to purchase.
Agents Note - The properties will be served by the construction of a new access road leading from the Hartwell Road, the cost of which will be borne by the two plots proportionally.
Whilst Planning Permission was granted by West Northants Council under reference 2024/1544/FULL we believe that the Planning Department may look favourably at reverting this to one substantial property, (subject to a new Planning application and permission).
Floorplan - Howkins and Harrison provide these plans for reference only - they are not to scale.
Local Authority - West Northamptonshire Council
The Forum, Moat Lane
Towcester, NN12 6AD
Viewing Arrangements - Strictly by prior appointment via the selling agents, Howkins and Harrison. Tel:01327-353575.
Services - All mains services available
None of the above services have been tested and purchasers should note that it is their specific responsibility to make their own enquiries of the appropriate authorities as to the location, adequacy and availability of mains water, electricity, gas and drainage services.
Important Notice - Every care has been taken with the preparation of these Sales Particulars, but complete accuracy cannot be guaranteed. In all cases, buyers should verify matters for themselves. Where property alterations have been undertaken buyers should check that relevant permissions have been obtained. If there is any point, which is of particular importance let us know and we will verify it for you. These Particulars do not constitute a contract or part of a contract. All measurements are approximate. The Fixtures, Fittings, Services & Appliances have not been tested and therefore no guarantee can be given that they are in working order. Photographs are provided for general information and it cannot be inferred that any item shown is included in the sale. Plans are provided for general guidance and are not to scale.
Brochures
Brochure- Plot 2, 13 Hartwell Road, Roade.pdf13 Hartwell Road, Roade, NN7
NEAREST STATIONS
Distances are straight line measurements from the centre of the postcode- Northampton Station5.6 miles
Notes
Disclaimer - Property reference 33501773. The information displayed about this property comprises a property advertisement. Rightmove.co.uk makes no warranty as to the accuracy or completeness of the advertisement or any linked or associated information, and Rightmove has no control over the content. This property advertisement does not constitute property particulars. The information is provided and maintained by Howkins & Harrison LLP, Towcester. Please contact the selling agent or developer directly to obtain any information which may be available under the terms of The Energy Performance of Buildings (Certificates and Inspections) (England and Wales) Regulations 2007 or the Home Report if in relation to a residential property in Scotland.
Map data ©OpenStreetMap contributors.







