Albion Square, London Fields, London, E8 4BS
- SIZE AVAILABLE
1,432 sq ft
133 sq m
- SECTOR
Land for sale
- USE CLASSUse class orders: C2 Residential Institutions
C2
Key features
- Planning Approved - 2 storey House + Courtyard Terrace + Garden
- £800,000 Guide Price
- Site Footprint 1,432 sq ft
- Prosed Ground Floor 786 sq ft
- Proposed First Floor 657 sq ft
- Proposed Amenity Space 431 sq ft
- Haggerston Overground Station within walking distance
Description
The project would suit an ambitious self-build owner occupier with an appreciation for modernist design and the desire to live in a house completed to their own bespoke specification. The former garage building remains on site so light demolition and site clearance is required and approx. £65,000 of section 106 / affordable housing costs will be payable by the purchaser once development commences.
The site is located in the London Borough of Hackney, within the Hackney South and Shoreditch area and London Fields ward. The site sits along Middleton Road, between Haggerston to the south and Dalston to the north, running from Kingsland Road (A10) to London Fields. The property, accessible from Middleton Road, currently has a vacant car repair garage.
The freehold is available subject to a guide price of £800,000 (VAT not applicable). All other terms and conditions by negotiation.
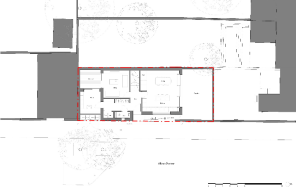
Schedule of Accommodation:
Ground Floor:
Living Room: 14 m2
Dining/Kitchen: 30.5 m2
Home Office: 8 m2
WC:2 m2
Storage: 4 m2
First Floor:
Master Bedroom: 14 m2
Bedroom 1: 12 m2
Bedroom 2: 12 m2
Family Bathroom: 4.7 m2
Ensuite: 5 m2
Storage: 5 m2
Brochures
Albion Square, London Fields, London, E8 4BS
NEAREST STATIONS
Distances are straight line measurements from the centre of the postcode- Haggerston Station0.2 miles
- Dalston Junction Station0.4 miles
- Dalston Kingsland Station0.6 miles
Notes
Disclaimer - Property reference 153840-1. The information displayed about this property comprises a property advertisement. Rightmove.co.uk makes no warranty as to the accuracy or completeness of the advertisement or any linked or associated information, and Rightmove has no control over the content. This property advertisement does not constitute property particulars. The information is provided and maintained by Fyfe Mcdade Limited, London. Please contact the selling agent or developer directly to obtain any information which may be available under the terms of The Energy Performance of Buildings (Certificates and Inspections) (England and Wales) Regulations 2007 or the Home Report if in relation to a residential property in Scotland.
Map data ©OpenStreetMap contributors.






