Telegraph Hill Industrial Estate, Laundry Road, Minster, Ramsgate
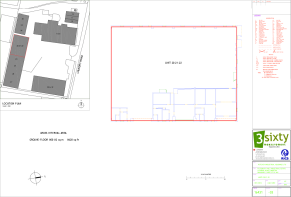
- SIZE AVAILABLE
11,486 sq ft
1,067 sq m
- SECTOR
Light industrial facility to lease
Lease details
- Lease available date:
- Ask agent
Key features
- Established Industrial Estate
- Ample On-Site Car Parking
- 24/7 Access
Description
Range of industrial units on popular established estate.
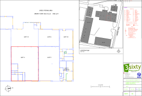
Available Units:
Unit 4: 2,866 sq. ft. - Rent: £22,930 pax
Unit 20-22: 8,620 sq. ft. - Rent: £64,650 pax
A range of industrial units available to let on this well-established industrial estate. The estate offers a variety of unit sizes to accommodate a broad range of occupiers, from small start-ups to established businesses requiring larger space.
The units are generally of steel frame or block construction with roller shutter doors, good eaves height, and solid concrete flooring. Many benefit from dedicated loading areas, three-phase power, office accommodation and ample on-site parking.
LOCATION
The property is located on the popular Telegraph Hill Industrial Estate which comprises a range of both offices and industrial units. The estate is a short distance from the Minster/Manston roundabout services and the A299 dual carriageway, giving it excellent connections to Ramsgate (6 miles), Canterbury (12 miles), Dover (20 miles) and the M2 and M20 motorways.
Minster and Thanet Parkway station provide access to the High Speed 1 services to London via Ashford International with journey times of approximately one and a half hours.
TERMS
The units are available to let on a new effective full repairing and insuring lease for a term to be agreed.
Please see attached brochure for full details.
Brochures
Telegraph Hill Industrial Estate, Laundry Road, Minster, Ramsgate
NEAREST STATIONS
Distances are straight line measurements from the centre of the postcode- Minster Station0.9 miles
- Birchington-on-Sea Station2.7 miles
- Westgate-on-Sea Station2.8 miles
Notes
Disclaimer - Property reference 33516662. The information displayed about this property comprises a property advertisement. Rightmove.co.uk makes no warranty as to the accuracy or completeness of the advertisement or any linked or associated information, and Rightmove has no control over the content. This property advertisement does not constitute property particulars. The information is provided and maintained by BTF Partnership, Canterbury. Please contact the selling agent or developer directly to obtain any information which may be available under the terms of The Energy Performance of Buildings (Certificates and Inspections) (England and Wales) Regulations 2007 or the Home Report if in relation to a residential property in Scotland.
Map data ©OpenStreetMap contributors.






