Station Road , Castle Cary, BA7

- PROPERTY TYPE
Terraced
- BEDROOMS
3
- BATHROOMS
1
- SIZE
Ask agent
- TENUREDescribes how you own a property. There are different types of tenure - freehold, leasehold, and commonhold.Read more about tenure in our glossary page.
Freehold
Key features
- No Onward Chain
- Brand New Three Bedroom Mid Terrace Property
- Two Allocated Parking Spaces
- Walking Distance From The Town Centre
- Local To Castle Cary Train Station
- Comes With Full 10 Year NHBC Warranty Upon Completed Build
- Rear Garden
- Visitor Parking
- Reserve Your Plot For £1,000
Description
We are delighted to bring to the market this development of beautifully presented and finished terraced houses in the heart of Castle Cary. This development offers a wonderful opportunity to secure an off plan property in readiness for an early autumn 2025 completion.
DESCRIPTION
We are proud to announce a new-build development in what used to be the Constitutional Club in Castle Cary. The site is being marketed off plan, with completion for the build estimated to be early autumn 2025.
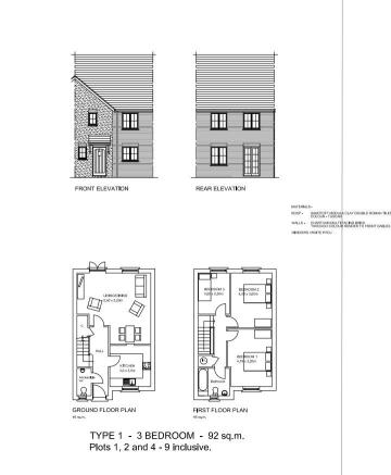
This plot is a three-bedroom mid-terrace home, situated on Station Road near the heart of town. With thoughtfully designed interiors, modern energy-efficient features being targeted and a high-quality finish throughout, this home presents a fantastic opportunity for first-time buyers, young professionals, and families alike. All plots have three spacious bedrooms. Each bedroom in this mid-terrace home is designed to maximise both space and natural light that is on offer, helping to create a welcoming and comfortable home. The master bedroom, located on the first floor, is generously sized with enough space for built-in wardrobes or additional furnishings, while the two additional bedrooms will be well-suited for family use, a guest room, or a home office.
Location
Station Road offers the best of both worlds: an established residential area with all the convenience of being close to town amenities. You can enjoy easy access to local shops, cafes, hairdressers all within a short walk, and a nearby train station making it ideal for commuting or weekend trips to London.
Tenure
Freehold
EPC
Targeted EPC Ratings For All Plots Are "A"
Council Tax Band
B
Brochures
Brochure 1- COUNCIL TAXA payment made to your local authority in order to pay for local services like schools, libraries, and refuse collection. The amount you pay depends on the value of the property.Read more about council Tax in our glossary page.
- Band: B
- PARKINGDetails of how and where vehicles can be parked, and any associated costs.Read more about parking in our glossary page.
- Yes
- GARDENA property has access to an outdoor space, which could be private or shared.
- Yes
- ACCESSIBILITYHow a property has been adapted to meet the needs of vulnerable or disabled individuals.Read more about accessibility in our glossary page.
- Ask agent
Energy performance certificate - ask agent
Station Road , Castle Cary, BA7
Add an important place to see how long it'd take to get there from our property listings.
__mins driving to your place
Get an instant, personalised result:
- Show sellers you’re serious
- Secure viewings faster with agents
- No impact on your credit score



Your mortgage
Notes
Staying secure when looking for property
Ensure you're up to date with our latest advice on how to avoid fraud or scams when looking for property online.
Visit our security centre to find out moreDisclaimer - Property reference 28364894. The information displayed about this property comprises a property advertisement. Rightmove.co.uk makes no warranty as to the accuracy or completeness of the advertisement or any linked or associated information, and Rightmove has no control over the content. This property advertisement does not constitute property particulars. The information is provided and maintained by Cooper & Tanner, Castle Cary. Please contact the selling agent or developer directly to obtain any information which may be available under the terms of The Energy Performance of Buildings (Certificates and Inspections) (England and Wales) Regulations 2007 or the Home Report if in relation to a residential property in Scotland.
*This is the average speed from the provider with the fastest broadband package available at this postcode. The average speed displayed is based on the download speeds of at least 50% of customers at peak time (8pm to 10pm). Fibre/cable services at the postcode are subject to availability and may differ between properties within a postcode. Speeds can be affected by a range of technical and environmental factors. The speed at the property may be lower than that listed above. You can check the estimated speed and confirm availability to a property prior to purchasing on the broadband provider's website. Providers may increase charges. The information is provided and maintained by Decision Technologies Limited. **This is indicative only and based on a 2-person household with multiple devices and simultaneous usage. Broadband performance is affected by multiple factors including number of occupants and devices, simultaneous usage, router range etc. For more information speak to your broadband provider.
Map data ©OpenStreetMap contributors.




