
Main Street, Whittington, Carnforth, Lancashire
- PROPERTY TYPE
Plot
- BEDROOMS
3
- SIZE
Ask agent
Key features
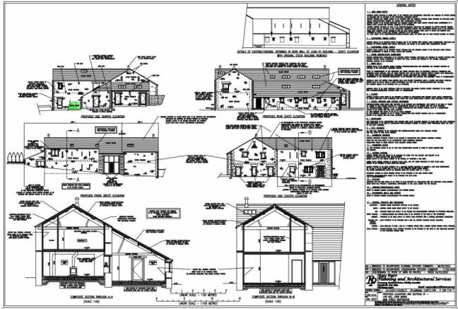
- Superb development opportunity to covert a traditional Grade II listed barn
- Full planning consent for spacious conversion into two dwellings together with gardens and parking
- Positioned in a highly sought after and accessible village location
- Views over open countryside
- Offered as a whole
Description
The approved plans allow for the creation of two distinct homes, with plenty of scope to incorporate character and charm into the finishes.
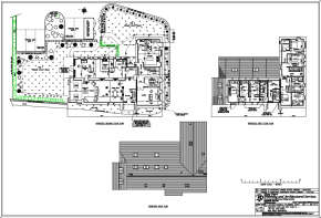
Full planning consent has been granted under planning reference 23/00085/FUL which provides for a change of use for the conversion of the agricultural building into 2 dwellings, change of use of agricultural land to domestic gardens and car parking. The development is offered to the market as one.
Unit one provides generous accommodation over 225 square meters, with hallway, open plan lounge and dining area, kitchen living space, separate study/day room and utility to the ground floor. Upstairs, consists of three bedrooms, with house bathroom to the first floor and additional open study area.
Unit 2 provides 174 square metres offering a kitchen living space, with lounge, dining room and utility to ground floor. With four bedrooms (two being ensuite) and house bathroom to the first floor.
Externally, each home will enjoy a private garden area and allocated parking.
This unique opportunity is ideal for developers to create unique homes in a sought-after rural position.
Brochures
ParticularsMain Street, Whittington, Carnforth, Lancashire
NEAREST STATIONS
Distances are straight line measurements from the centre of the postcode- Wennington Station3.8 miles
- Bentham Station5.9 miles
Notes
Disclaimer - Property reference KEN230163. The information displayed about this property comprises a property advertisement. Rightmove.co.uk makes no warranty as to the accuracy or completeness of the advertisement or any linked or associated information, and Rightmove has no control over the content. This property advertisement does not constitute property particulars. The information is provided and maintained by Armitstead Barnett, Cumbria. Please contact the selling agent or developer directly to obtain any information which may be available under the terms of The Energy Performance of Buildings (Certificates and Inspections) (England and Wales) Regulations 2007 or the Home Report if in relation to a residential property in Scotland.
Map data ©OpenStreetMap contributors.






