
Hertsmere Road, London, E14

- PROPERTY TYPE
Flat
- BEDROOMS
3
- BATHROOMS
2
- SIZE
1,595 sq ft
148 sq m
Key features
- Unbeatable Location
- Stunning Interiors
- Vast Open Plan Living Space
- Two Large Double Bedrooms
- Versatile 3rd Bedroom or Home Office Space
- Dock Views
- Sheltered Balcony
- Secure Parking Space
- 24hr Concierge Team
- Seconds to Canary Wharf.
Description
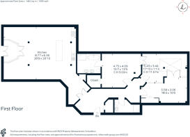
This stunning warehouse apartment spans approximately 1,600 sq ft. and is situated on the first floor, offering direct south-facing views over West India Quay. Immaculately presented, the property boasts a perfect blend of modern comfort and traditional charm, complete with original warehouse features, a sheltered balcony, and secure parking.
The open-plan living and dining area is an impressive space, ideal for entertaining. Solid oak flooring, exposed brick walls, and timber beams add character, while the fabulous kitchen is perfect for culinary enthusiasts. The south-facing balcony, accessed directly from the living room, provides a sheltered space to enjoy the beautiful dockside views throughout the year.
The primary bedroom suite offers a luxurious retreat, featuring a spacious walk-in dressing room and a recently refurbished en-suite bathroom. The second double bedroom is generously proportioned with fitted wardrobes.
For those working from home, the additional office space offers versatility and charm, with its high vaulted ceiling and timber beams. This room could also be used as a third double bedroom, catering to a variety of needs. There is even the possibility to add a mezzanine floor here, adding to the overall space.
With its characterful design, generous interiors, and excellent location, this exceptional chain free apartment must be viewed.
Outside
Accessed from the living room is this sheltered south facing balcony offering stunning views over West India Quay and towards the Canary Wharf estate. Perfect for all year round use.
Situation
Port East Apartments has an excellent location at West India Quay. With the Elizabeth Line, DLR and Jubilee line stations all just minutes away, commuting across town could not be any easier. Canary Wharf itself is just over the dock offering a vast array of shops, restaurants, bars and supermarkets.
Brochures
Brochure- COUNCIL TAXA payment made to your local authority in order to pay for local services like schools, libraries, and refuse collection. The amount you pay depends on the value of the property.Read more about council Tax in our glossary page.
- Band: G
- PARKINGDetails of how and where vehicles can be parked, and any associated costs.Read more about parking in our glossary page.
- Allocated
- GARDENA property has access to an outdoor space, which could be private or shared.
- Ask agent
- ACCESSIBILITYHow a property has been adapted to meet the needs of vulnerable or disabled individuals.Read more about accessibility in our glossary page.
- Ask agent
Energy performance certificate - ask agent
Hertsmere Road, London, E14
Add an important place to see how long it'd take to get there from our property listings.
__mins driving to your place
Get an instant, personalised result:
- Show sellers you’re serious
- Secure viewings faster with agents
- No impact on your credit score


Your mortgage
Notes
Staying secure when looking for property
Ensure you're up to date with our latest advice on how to avoid fraud or scams when looking for property online.
Visit our security centre to find out moreDisclaimer - Property reference a1nQ500000GKkn3IAD. The information displayed about this property comprises a property advertisement. Rightmove.co.uk makes no warranty as to the accuracy or completeness of the advertisement or any linked or associated information, and Rightmove has no control over the content. This property advertisement does not constitute property particulars. The information is provided and maintained by Hamptons, Canary Wharf. Please contact the selling agent or developer directly to obtain any information which may be available under the terms of The Energy Performance of Buildings (Certificates and Inspections) (England and Wales) Regulations 2007 or the Home Report if in relation to a residential property in Scotland.
*This is the average speed from the provider with the fastest broadband package available at this postcode. The average speed displayed is based on the download speeds of at least 50% of customers at peak time (8pm to 10pm). Fibre/cable services at the postcode are subject to availability and may differ between properties within a postcode. Speeds can be affected by a range of technical and environmental factors. The speed at the property may be lower than that listed above. You can check the estimated speed and confirm availability to a property prior to purchasing on the broadband provider's website. Providers may increase charges. The information is provided and maintained by Decision Technologies Limited. **This is indicative only and based on a 2-person household with multiple devices and simultaneous usage. Broadband performance is affected by multiple factors including number of occupants and devices, simultaneous usage, router range etc. For more information speak to your broadband provider.
Map data ©OpenStreetMap contributors.





