
Plot 1 Parc-Tyn-y-Waun, Llangynwyd, Maesteg, Bridgend. CF34 9RG

- PROPERTY TYPE
Detached
- BEDROOMS
4
- BATHROOMS
2
- SIZE
Ask agent
- TENUREDescribes how you own a property. There are different types of tenure - freehold, leasehold, and commonhold.Read more about tenure in our glossary page.
Ask agent
Key features
- BRAND NEW HOMES IN LLANGYNWYD - NOW ON SITE
- Sought after village location
- Beautiful countryside to explore
- Quality finishes throughout
- Balcony off the lounge with elevated views
- Potential for a self contained ground floor flat
- Images for illustration only
Description
Parc Tyn Y Waun is a popular and established residential development positioned within the historic village of Llangynwyd. The properties are within easy walking distance of Ysgol Gyfun Gymraeg Llangynwyd and Llangynwyd Primary school. There is fantastic countryside to explore locally as well as local pubs, a quality restaurant at The Old House 1147 and local retail facilities.
Estimated completion of both plots is May 2026.
Please register your details with us today.
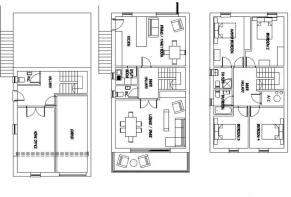
Description
These plans are the proposed layout for the house. The developer may be able to consider some minor amendments to the layout should a purchaser wish (subject to timescale and proposed changes).
Each plot is priced at £465,000.
The ground floor provides an ideal opportunity for conversion to a self contained 'annexe'. In light of this there is additional access to the first floor provided by the side staircase. (This will require appropriate planning consent and building regulations).
Entrance Hall
With double doors to the home office, a courtesy door to the garage and a door to the WC.
Home office
7.20m x 3.25m (23' 7" x 10' 8")
With double doors accessed off the entrance hallway and a full height picture window overlooking the front.
W.C.
Kitchen/Breakfast/Family Room
Access off the first floor landing and with large bi-fold doors giving access to the rear garden.
The kitchen layout has been agreed but the choice of finishes is available to a purchaser. Integrated appliances to include cooker & hob, overhead extractor hood, fridge / freezer and dishwasher.
Utility
W.C.
Lounge/diner
6.50m x 5.35m Max (21' 4" x 17' 7" Max)
A generous room with large pocket doors leading to a balcony area to the front.
Bedroom 1
4.60m x 3.00m (15' 1" x 9' 10")
Overlooking the rear garden with a door into the en-suite and fitted wardrobes.
En-suite shower room
Fitted with a 3 piece suite to include a quadrant style shower. Tile choices available.
Bedroom 2
4.60m x 3.00m (15' 1" x 9' 10")
Overlooking the rear with fitted wardrobes.
Bedroom 3
3.20m x 3.00m (10' 6" x 9' 10")
Bedroom 4
3.20m x 3.00m (10' 6" x 9' 10")
Family bathroom
Fitted with a 3 piece suite and tiling options and choices available.
Rear Garden
Enclosed with close board fence and laid with turf. Gated access to the front.
Single Garage
With electric roller shutter door. Courtesy door into the entrance hallway. Power and light plus EV charging point.
Brochures
Brochure- COUNCIL TAXA payment made to your local authority in order to pay for local services like schools, libraries, and refuse collection. The amount you pay depends on the value of the property.Read more about council Tax in our glossary page.
- Band: TBC
- PARKINGDetails of how and where vehicles can be parked, and any associated costs.Read more about parking in our glossary page.
- Yes
- GARDENA property has access to an outdoor space, which could be private or shared.
- Yes
- ACCESSIBILITYHow a property has been adapted to meet the needs of vulnerable or disabled individuals.Read more about accessibility in our glossary page.
- Ask agent
Energy performance certificate - ask agent
Plot 1 Parc-Tyn-y-Waun, Llangynwyd, Maesteg, Bridgend. CF34 9RG
Add an important place to see how long it'd take to get there from our property listings.
__mins driving to your place
Get an instant, personalised result:
- Show sellers you’re serious
- Secure viewings faster with agents
- No impact on your credit score
Your mortgage
Notes
Staying secure when looking for property
Ensure you're up to date with our latest advice on how to avoid fraud or scams when looking for property online.
Visit our security centre to find out moreDisclaimer - Property reference PRA21762. The information displayed about this property comprises a property advertisement. Rightmove.co.uk makes no warranty as to the accuracy or completeness of the advertisement or any linked or associated information, and Rightmove has no control over the content. This property advertisement does not constitute property particulars. The information is provided and maintained by Payton Jewell Caines, Bridgend. Please contact the selling agent or developer directly to obtain any information which may be available under the terms of The Energy Performance of Buildings (Certificates and Inspections) (England and Wales) Regulations 2007 or the Home Report if in relation to a residential property in Scotland.
*This is the average speed from the provider with the fastest broadband package available at this postcode. The average speed displayed is based on the download speeds of at least 50% of customers at peak time (8pm to 10pm). Fibre/cable services at the postcode are subject to availability and may differ between properties within a postcode. Speeds can be affected by a range of technical and environmental factors. The speed at the property may be lower than that listed above. You can check the estimated speed and confirm availability to a property prior to purchasing on the broadband provider's website. Providers may increase charges. The information is provided and maintained by Decision Technologies Limited. **This is indicative only and based on a 2-person household with multiple devices and simultaneous usage. Broadband performance is affected by multiple factors including number of occupants and devices, simultaneous usage, router range etc. For more information speak to your broadband provider.
Map data ©OpenStreetMap contributors.








