Light industrial facility to lease
Rush Lane, Bidford-on-Avon Warwickshire B50 4ER
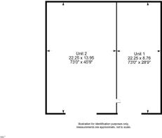
- SIZE AVAILABLE
3,347 sq ft
311 sq m
- SECTOR
Light industrial facility to lease
Lease details
- Lease available date:
- Ask agent
Key features
- 3,347 sq ft (311.08 m2
- Affordable Storage
- Large Access Doors
- Gated Private Site
- £18,500 pa + VAT
Description
The unit is constructed of a mix of profile roof sheets, box cladding and concrete lower panels. The landlord has fitted the unit with LED lights to a new fuse board ready to take a tenants fit out. There are no facilities at present but the landlord is looking to provide a modular toilet/kitchen unit in the unit. The unit has a concrete floor, sliding access door and a eaves of 6.70 m with a ridge height of 7.80 m. The landlord is finishing off the cladding to the right hand side splitting it off from unit 1.
Brochures
Rush Lane, Bidford-on-Avon Warwickshire B50 4ER
NEAREST STATIONS
Distances are straight line measurements from the centre of the postcode- Honeybourne Station5.1 miles
- Wilmcote Station6.1 miles
Notes
Disclaimer - Property reference 33427700. The information displayed about this property comprises a property advertisement. Rightmove.co.uk makes no warranty as to the accuracy or completeness of the advertisement or any linked or associated information, and Rightmove has no control over the content. This property advertisement does not constitute property particulars. The information is provided and maintained by Westbridge Commercial Limited, Stratford Upon Avon. Please contact the selling agent or developer directly to obtain any information which may be available under the terms of The Energy Performance of Buildings (Certificates and Inspections) (England and Wales) Regulations 2007 or the Home Report if in relation to a residential property in Scotland.
Map data ©OpenStreetMap contributors.






