Plot for sale
Plot South of 2 Glenfalloch Road, Crianlarich, FK20 8RJ
- PROPERTY TYPE
Plot
- SIZE
11,761 sq ft
1,093 sq m
Key features
- Attractive Building Plot
- Countryside & Mountain Views
- Attractive Village Location
- Full Planning Permission for Architect-Designed Detached Property
- Electricity on Site
- SEPA Licence in place for Waste Treatment Plant/Septic Tank Connection
- Scottish Water Approval for the new Water Connection
- Around 0.27 Acres
Description
A rare opportunity has arisen to purchase an attractive plot of land, well-located near the edge of the charming, historic village of Crianlarich, the 'Gateway to the Highlands'. Enjoying a good position with views to the surrounding mountains and countryside, Plot South of 2 Glenfalloch Road benefits from Full Planning Permission for an Architect-designed detached dwellinghouse, and extends to around 0.27 acres. The plot has been levelled and boasts electricity on site, whilst the owner already has a SEPA licence in place for a new waste treatment plant/septic tank, and Scottish Water have agreed to the new connection, which the owner has paid for.
The village of Crianlarich is located in Glen Strathfillan to the north of the Trossachs, some eight miles north of the head of Loch Lomond, boasting Munro peaks, Ben More, Stob Binnein and Cruach Ardrain. This small historic village is an important staging post on various transport routes linking central and northwestern Scotland. The main A82 road is joined briefly by the A85 Perth-Oban road at Crianlarich while the West Highland railway divides here with one branch heading due west towards Oban, the other continuing north over Rannoch Moor to Fort William. The West Highland Way long-distance footpath also passes through here. The village hosts a variety of amenities including a range of accommodation types, hotel, train station, fantastic village shop with Post Office and tea-room.
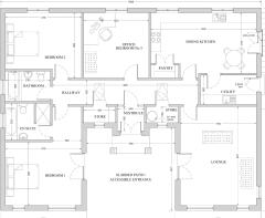
Planning Permission
Full Planning Permission was granted on 14th March 2023, Reference: 2022/0369/DET, for the erection of a detached dwellinghouse, installation of new waste water treatment system and erection of footway crossover. Copies of the Planning Permission, and approved plans, are available on the Loch Lomond & Trossachs National Park website under the Planning section ( or by request with the selling agent.
Services
Electricity is on-site. Permission has been granted by SEPA for the water connection whilst drainage will be to a septic tank/waste treatment plant, to be installed by the purchasers.
Travel Directions
From Glasgow, proceed north on the A82 road for around 50 miles. On approaching the village, take the second exit on the roundabout in to the village. The plot is located on the right hand side directly after the 3rd property (brown timber bungalow).
Brochures
Sales ParticularsPlot South of 2 Glenfalloch Road, Crianlarich, FK20 8RJ
NEAREST STATIONS
Distances are straight line measurements from the centre of the postcode- Crianlarich Station0.1 miles
- Upper Tyndrum Station4.6 miles
- Tyndrum Lower Station4.8 miles



Notes
Disclaimer - Property reference PlotSouthOf2GlenfallochRoadCrianlarich. The information displayed about this property comprises a property advertisement. Rightmove.co.uk makes no warranty as to the accuracy or completeness of the advertisement or any linked or associated information, and Rightmove has no control over the content. This property advertisement does not constitute property particulars. The information is provided and maintained by MacPhee And Partners LLP, Fort William. Please contact the selling agent or developer directly to obtain any information which may be available under the terms of The Energy Performance of Buildings (Certificates and Inspections) (England and Wales) Regulations 2007 or the Home Report if in relation to a residential property in Scotland.
Map data ©OpenStreetMap contributors.





