The Row, Church Street, Middle Rasen, LN8 3TR

- PROPERTY TYPE
Cottage
- BEDROOMS
2
- BATHROOMS
1
- SIZE
Ask agent
- TENUREDescribes how you own a property. There are different types of tenure - freehold, leasehold, and commonhold.Read more about tenure in our glossary page.
Ask agent
Key features
- Upvc double glazing
- Central Heating
- Village Location
- Front and Rear Gardens
Description
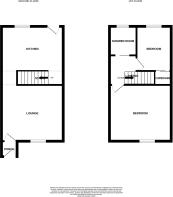
A Two Bedroom Terraced Cottage found within Church Street in the highly desirable and much sought after village of Middle Rasen. The property, which benefits from Upvc Double Glazed Windows and a Gas Fired Central Heating System briefly comprises; Porch, Living Room, Kitchen, Two Bedrooms and Bathroom and has gardens to both the front and rear. The village itself benefits from a Public House and Primary School and is not far from the town of Market Rasen which offers further amenities including shops, schools, Racecourse and Golf Course.
Porch Having Upvc double glazed door.
Sitting Room 4.00m x 3.65m With fireplace and window overlooking the front garden.
Inner Lobby With understairs storage.
Kitchen 3.82m x 2.88m Having a range of fitted wall and base units with contrasting worktops and drainer sink unit with mixer tap over. Built in oven, four ring electric hob with extractor over. Integrated fridge/freezer and space for a washing machine. Wall mounted boiler. A window overlooks the rear and a Upvc part double glazed door provides access to the garden.
Bedroom 1 3.22m to wardrobe x 3.70m With a range of fitted wardrobes and a window overlooking the front garden.
Bedroom 2 2.92m x 2.01m Having window overlooking the rear garden and built in storage.
Shower Room With suite comprising; corner shower, vanity style wash hand basin with mixer tap over and low flush WC. Tiling to the walls and a wall mounted chrome towel rail.
Outside The property stands back with a mature hedge to the front and the garden laid predominantly to lawn. The boundaries are formed by both hedges and fencing. The rear garden is partly lawned with a paved patio and garden shed.
We understand a right of way exists over the private drive off Church Street to the rear of the property. All interested parties are advised to confirm this with their solicitor.
Tenure We are verbally advised that the property is of freehold tenure and we are awaiting formal confirmation from the vendors solicitor.
Council Tax Band: ‘A’ NB: This can be reviewed by the Local Authority.
EPC Rating: ‘D’
FURTHER INFORMATION AND TO VIEW:
Viewing by appointment only, contact James Chisholm .
Inspection Date: 02 January 2025
Drafted Date: 03 January 2025
DISCLAIMER: This floor plan is for illustrative purposes only and not to scale; it should not be relied upon for accuracy. The image remains the intellectual property of Canters and should not be reproduced without consent.
Property Management and Lettings
If you are a landlord looking to relieve yourself of the stress surrounding your tenanted properties or alternatively if you are seeking tenants, then Canters are more than happy to help. We offer outstanding property management services as well as a quick turnaround letting service. If you wish to discuss your management needs, then please do not hesitate to call us on or email
Free Valuation Service
Are you thinking of selling? We offer fast and free marketing appraisals for all properties with a view to go to market. Our team are often able to complete the free valuation within the week and service a wide radius of areas including Grimsby / Cleethorpes and surrounding villages along with Tetney, Caistor, Louth and Immingham. If you are seeking a formal written valuation for mortgage or a variety of other purposes, please contact our sales team at our Grimsby Office.
- COUNCIL TAXA payment made to your local authority in order to pay for local services like schools, libraries, and refuse collection. The amount you pay depends on the value of the property.Read more about council Tax in our glossary page.
- Ask agent
- PARKINGDetails of how and where vehicles can be parked, and any associated costs.Read more about parking in our glossary page.
- Yes
- GARDENA property has access to an outdoor space, which could be private or shared.
- Yes
- ACCESSIBILITYHow a property has been adapted to meet the needs of vulnerable or disabled individuals.Read more about accessibility in our glossary page.
- Ask agent
Energy performance certificate - ask agent
The Row, Church Street, Middle Rasen, LN8 3TR
Add an important place to see how long it'd take to get there from our property listings.
__mins driving to your place
Get an instant, personalised result:
- Show sellers you’re serious
- Secure viewings faster with agents
- No impact on your credit score
Your mortgage
Notes
Staying secure when looking for property
Ensure you're up to date with our latest advice on how to avoid fraud or scams when looking for property online.
Visit our security centre to find out moreDisclaimer - Property reference 20244770_14198214. The information displayed about this property comprises a property advertisement. Rightmove.co.uk makes no warranty as to the accuracy or completeness of the advertisement or any linked or associated information, and Rightmove has no control over the content. This property advertisement does not constitute property particulars. The information is provided and maintained by Canters, Grimsby. Please contact the selling agent or developer directly to obtain any information which may be available under the terms of The Energy Performance of Buildings (Certificates and Inspections) (England and Wales) Regulations 2007 or the Home Report if in relation to a residential property in Scotland.
*This is the average speed from the provider with the fastest broadband package available at this postcode. The average speed displayed is based on the download speeds of at least 50% of customers at peak time (8pm to 10pm). Fibre/cable services at the postcode are subject to availability and may differ between properties within a postcode. Speeds can be affected by a range of technical and environmental factors. The speed at the property may be lower than that listed above. You can check the estimated speed and confirm availability to a property prior to purchasing on the broadband provider's website. Providers may increase charges. The information is provided and maintained by Decision Technologies Limited. **This is indicative only and based on a 2-person household with multiple devices and simultaneous usage. Broadband performance is affected by multiple factors including number of occupants and devices, simultaneous usage, router range etc. For more information speak to your broadband provider.
Map data ©OpenStreetMap contributors.






