Manorfield, Ashford

- PROPERTY TYPE
Terraced
- BEDROOMS
2
- BATHROOMS
1
- SIZE
754 sq ft
70 sq m
- TENUREDescribes how you own a property. There are different types of tenure - freehold, leasehold, and commonhold.Read more about tenure in our glossary page.
Freehold
Key features
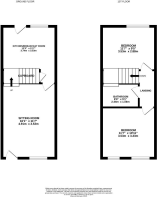
- A well presented, 2 Bedroom-mid terrace home
- An ideal first time buy or investment property
- Allocated parking to the rear of the home (visitor bays near-by)
- Large open-plan lounge to front of the home
- Rear kitchen/dining room with doors leading into garden
- Two generous double bedrooms
- Family bathroom servicing both bedrooms 1 & 2
- Mainly laid to lawn rear garden with rear access
- Located in the popular Singleton area of Ashford
- EPC Rating: D, Council Tax Band: B
Description
You'll find a pathway leading to a well kept frontage and entrance to the home, as well as offering allocated parking to the rear. The homes layout compromises a large living area with dining space, leading through to the kitchen. The kitchen boasts an array of wall and base units, along with a breakfast bar, with space for other free standing appliances and a picture window overlooking the well kept rear garden.
From the living area you will find the staircase leads to the first floor - where there are two ample sized bedrooms as well as the family bathroom. The master bedroom is a good size double, with the second bedroom over looking the rear garden. Both rooms are serviced by the family bathroom, consisting of bath with overhead shower, W/C and wash hand basin.
The rear garden has a small patio area to the front and rear, offering fence boundaries, with a large laid to lawn area. To the rear, the garden boasts a shed, great for all those gardening tools and a seating area to enjoy those hot summer days. There is a gate where you will find allocated parking and a great access point for any large deliveries.
The property is located in the popular area of Singleton and is within walking distance to Singleton lakes and also a range of amenities including Outstanding OFSTED rated Great Chart Primary School, parade of local shops, regular bus service, Doctors surgery, the local environment centre and Singleton Barn public house. The property is within a short drive to the international station with high-speed service to London St Pancras in 37 minutes.
Please call Hunters, sole agents on to arrange your viewing now.
All mains services are connected, but none have been tested by the agent.
New gas boiler being installed July 2025.
Flood Risk: Very low Each year, there is a chance of flooding of less than 1 in 1000 (0.1%)
Average Broadband Speed: 3mb Basic 68mb Superfast 1000mb Ultrafast 1000mb Overall
Brochures
Manorfield, Ashford- COUNCIL TAXA payment made to your local authority in order to pay for local services like schools, libraries, and refuse collection. The amount you pay depends on the value of the property.Read more about council Tax in our glossary page.
- Band: B
- PARKINGDetails of how and where vehicles can be parked, and any associated costs.Read more about parking in our glossary page.
- Yes
- GARDENA property has access to an outdoor space, which could be private or shared.
- Yes
- ACCESSIBILITYHow a property has been adapted to meet the needs of vulnerable or disabled individuals.Read more about accessibility in our glossary page.
- Ask agent
Manorfield, Ashford
Add an important place to see how long it'd take to get there from our property listings.
__mins driving to your place
Get an instant, personalised result:
- Show sellers you’re serious
- Secure viewings faster with agents
- No impact on your credit score



Your mortgage
Notes
Staying secure when looking for property
Ensure you're up to date with our latest advice on how to avoid fraud or scams when looking for property online.
Visit our security centre to find out moreDisclaimer - Property reference 33597617. The information displayed about this property comprises a property advertisement. Rightmove.co.uk makes no warranty as to the accuracy or completeness of the advertisement or any linked or associated information, and Rightmove has no control over the content. This property advertisement does not constitute property particulars. The information is provided and maintained by Hunters, Ashford. Please contact the selling agent or developer directly to obtain any information which may be available under the terms of The Energy Performance of Buildings (Certificates and Inspections) (England and Wales) Regulations 2007 or the Home Report if in relation to a residential property in Scotland.
*This is the average speed from the provider with the fastest broadband package available at this postcode. The average speed displayed is based on the download speeds of at least 50% of customers at peak time (8pm to 10pm). Fibre/cable services at the postcode are subject to availability and may differ between properties within a postcode. Speeds can be affected by a range of technical and environmental factors. The speed at the property may be lower than that listed above. You can check the estimated speed and confirm availability to a property prior to purchasing on the broadband provider's website. Providers may increase charges. The information is provided and maintained by Decision Technologies Limited. **This is indicative only and based on a 2-person household with multiple devices and simultaneous usage. Broadband performance is affected by multiple factors including number of occupants and devices, simultaneous usage, router range etc. For more information speak to your broadband provider.
Map data ©OpenStreetMap contributors.




