
3 bedroom detached house for sale
Trevemper, Newquay

- PROPERTY TYPE
Detached
- BEDROOMS
3
- BATHROOMS
2
- SIZE
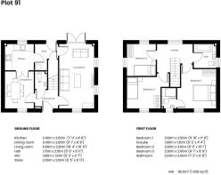
1,028 sq ft
96 sq m
- TENUREDescribes how you own a property. There are different types of tenure - freehold, leasehold, and commonhold.Read more about tenure in our glossary page.
Freehold
Key features
- Brand New Detached Three Bedroom Home
- Walking Distance to Local Amenities
- Eco-Friendly Air Source Heat Pump
- Enclosed South Facing Garden
- Driveway Parking
- Award Winning ICF Construction
- Choice of Contemporary Kitchen Cabinets and Worktops*
- Available Summer 2025
Description
The Development - A large collection of 2-4 bedroom high-spec homes located in the sought after area of Trevemper. These homes are constructed using ICF, a new method used to increase energy efficiency in brand new homes by using insulated concrete formwork (ICF) by the multi-award winning R-Wall construction. There are many other benefits of ICF construction including increased sound proofing; Increased thermal performance reducing your running costs; Structural integrity, even over traditional block work, reducing your ongoing maintenance costs.
Location - Nestled in the picturesque Trevemper area of Newquay, this property offers a perfect blend of coastal charm and countryside tranquility. Its location being just moments away from the famous Gannel Estuary and the vibrant heart of Newquay, boasting easy access to stunning beaches, scenic walking trails, and a variety of local amenities, including shops, cafes, and schools. With its ideal setting, this property is perfect for those seeking a peaceful lifestyle while remaining close to the dynamic coastal activities Newquay is renowned for.
Specification -
Internal Finish - - White Finished Walls With Matching Skirting
- Modern Oak Internal Doors
- Mix Of LED Spotlights and Feature Pendants
- Flooring Package Available (at additional cost)
Contemporary Kitchens - - Choice of Contemporary Handless Kitchens - a mix of white and grey's
- Neff Built in Appliances (Dishwasher & Washing Machine)
- Built-in Neff Electric Oven
- Electric Hob
- Integrated Fridge Freezer
- LED Feature Spotlights
Bathroom/En-Suite - - Tiled Walls
- Downstairs W/C
- Modern White Sanitary-ware
- Contemporary White Bath
- Walk-in Shower Unit
- LED Spotlights & Extractor Fan
- Chrome Heated Towel Rail
Heating And Electrics - - Radiators To All Rooms
- Air Source Heat Pump
- TV & Data Points In Living Space and Bedrooms
- Smoke Alarms Throughout
Garden And Parking - - Landscaped Enclosed Rear Garden
- Driveway Parking for two cars
Estate Fee - £248.63 per annum
Agents Note - * - Subject to build schedule and product availability
CGIs/Specs/Measurements/Plans are approximate and subject to change without notice.
Brochures
Trevemper, Newquay- COUNCIL TAXA payment made to your local authority in order to pay for local services like schools, libraries, and refuse collection. The amount you pay depends on the value of the property.Read more about council Tax in our glossary page.
- Band: TBC
- PARKINGDetails of how and where vehicles can be parked, and any associated costs.Read more about parking in our glossary page.
- Yes
- GARDENA property has access to an outdoor space, which could be private or shared.
- Yes
- ACCESSIBILITYHow a property has been adapted to meet the needs of vulnerable or disabled individuals.Read more about accessibility in our glossary page.
- Ask agent
Energy performance certificate - ask agent
Trevemper, Newquay
Add an important place to see how long it'd take to get there from our property listings.
__mins driving to your place
Get an instant, personalised result:
- Show sellers you’re serious
- Secure viewings faster with agents
- No impact on your credit score
Your mortgage
Notes
Staying secure when looking for property
Ensure you're up to date with our latest advice on how to avoid fraud or scams when looking for property online.
Visit our security centre to find out moreDisclaimer - Property reference 33598996. The information displayed about this property comprises a property advertisement. Rightmove.co.uk makes no warranty as to the accuracy or completeness of the advertisement or any linked or associated information, and Rightmove has no control over the content. This property advertisement does not constitute property particulars. The information is provided and maintained by David Ball Agencies, Newquay. Please contact the selling agent or developer directly to obtain any information which may be available under the terms of The Energy Performance of Buildings (Certificates and Inspections) (England and Wales) Regulations 2007 or the Home Report if in relation to a residential property in Scotland.
*This is the average speed from the provider with the fastest broadband package available at this postcode. The average speed displayed is based on the download speeds of at least 50% of customers at peak time (8pm to 10pm). Fibre/cable services at the postcode are subject to availability and may differ between properties within a postcode. Speeds can be affected by a range of technical and environmental factors. The speed at the property may be lower than that listed above. You can check the estimated speed and confirm availability to a property prior to purchasing on the broadband provider's website. Providers may increase charges. The information is provided and maintained by Decision Technologies Limited. **This is indicative only and based on a 2-person household with multiple devices and simultaneous usage. Broadband performance is affected by multiple factors including number of occupants and devices, simultaneous usage, router range etc. For more information speak to your broadband provider.
Map data ©OpenStreetMap contributors.








