4 bedroom detached bungalow for sale
Brae Road, Winscombe - SPACIOUS DETACHED BUNGALOW

- PROPERTY TYPE
Detached Bungalow
- BEDROOMS
4
- BATHROOMS
2
- SIZE
1,666 sq ft
155 sq m
- TENUREDescribes how you own a property. There are different types of tenure - freehold, leasehold, and commonhold.Read more about tenure in our glossary page.
Freehold
Key features
- Detached Bungalow
- Four Bedrooms
- Double Garage
- Ample Off-Road Parking
- Fantastic Views
- Excellent Location
- Ensuite to Master
- Generous Gardens
Description
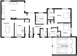
The property comprises in brief a living room, dining room, kitchen, utility, four bedrooms (one with en-suite), bathroom and a WC. Further benefits include a rear garden, front garden, double garage and ample off-road parking. Call today to view!
Entrance Hall - Access via front door. Doors into utility, living room, four bedrooms, bathroom and WC. Loft access. Two storage cupboards (one enclosing boiler).
Living Room - 5.96 x 4.44 (19'6" x 14'6") - Access via entrance hall. Double glazed window to rear. Sliding doors into garden. Feature fireplace. TV point.
Dining Room - 4.44 x 3.20 (14'6" x 10'5") - Access via living room or kitchen. Double glazed window to front.
Kitchen - 4.44 x 2.52 (14'6" x 8'3") - Access via utility or dining room. Double glazed window to front. Range of wall and base units with worktop over. Inset sink with mixer tap. Integrated oven. Gas hob with extractor over. Space and plumbing for several appliances.
Utility - 3.71 x 1.00 (12'2" x 3'3") - Access via front door or entrance hall. Worktop.
Bedroom One - 4.18 x 3.50 (13'8" x 11'5") - Access via entrance hall. Double glazed window to rear. Door into ensuite.
Ensuite - 2.64 x 1.56 (8'7" x 5'1") - Access via bedroom one. Double glazed window to rear. Bath with shower over. Toilet. Wash hand basin.
Bedroom Two - 3.24 x 3.24 (10'7" x 10'7") - Access via entrance hall. Double glazed window to side.
Bedroom Three - 2.90 x 2.70 (9'6" x 8'10") - Access via entrance hall. Double glazed window to rear.
Bedroom Four - 2.50 x 2.30 (8'2" x 7'6") - Access via entrance hall. Double glazed window to front. Built in wardrobe.
Bathroom - 2.04 x 1.73 (6'8" x 5'8") - Access via entrance hall. Double glazed window to front. Bath with shower over. Toilet. Wash hand basin.
Double Garage - 5.90 x 4.42 (19'4" x 14'6") -
Brochures
Brae Road, Winscombe - SPACIOUS DETACHED BUNGALOWBrochure- COUNCIL TAXA payment made to your local authority in order to pay for local services like schools, libraries, and refuse collection. The amount you pay depends on the value of the property.Read more about council Tax in our glossary page.
- Band: E
- PARKINGDetails of how and where vehicles can be parked, and any associated costs.Read more about parking in our glossary page.
- Yes
- GARDENA property has access to an outdoor space, which could be private or shared.
- Yes
- ACCESSIBILITYHow a property has been adapted to meet the needs of vulnerable or disabled individuals.Read more about accessibility in our glossary page.
- Ask agent
Brae Road, Winscombe - SPACIOUS DETACHED BUNGALOW
Add an important place to see how long it'd take to get there from our property listings.
__mins driving to your place
Get an instant, personalised result:
- Show sellers you’re serious
- Secure viewings faster with agents
- No impact on your credit score
Your mortgage
Notes
Staying secure when looking for property
Ensure you're up to date with our latest advice on how to avoid fraud or scams when looking for property online.
Visit our security centre to find out moreDisclaimer - Property reference 33601789. The information displayed about this property comprises a property advertisement. Rightmove.co.uk makes no warranty as to the accuracy or completeness of the advertisement or any linked or associated information, and Rightmove has no control over the content. This property advertisement does not constitute property particulars. The information is provided and maintained by Hewlett Homes, Covering North Somerset. Please contact the selling agent or developer directly to obtain any information which may be available under the terms of The Energy Performance of Buildings (Certificates and Inspections) (England and Wales) Regulations 2007 or the Home Report if in relation to a residential property in Scotland.
*This is the average speed from the provider with the fastest broadband package available at this postcode. The average speed displayed is based on the download speeds of at least 50% of customers at peak time (8pm to 10pm). Fibre/cable services at the postcode are subject to availability and may differ between properties within a postcode. Speeds can be affected by a range of technical and environmental factors. The speed at the property may be lower than that listed above. You can check the estimated speed and confirm availability to a property prior to purchasing on the broadband provider's website. Providers may increase charges. The information is provided and maintained by Decision Technologies Limited. **This is indicative only and based on a 2-person household with multiple devices and simultaneous usage. Broadband performance is affected by multiple factors including number of occupants and devices, simultaneous usage, router range etc. For more information speak to your broadband provider.
Map data ©OpenStreetMap contributors.





