Skip to content

Florida, St Johns County, St Augustine, USA

£857,440
USD $1,150,000
John D Wood International, USA 2
PROPERTY TYPE

Detached

BEDROOMS

5

BATHROOMS

4

SIZE

Ask agent

Key features

  • Garage Count: 3 Car Garage

Description

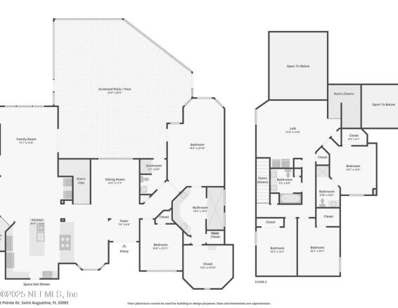
Wow, this home is incredible. Recent renovations and updates make this home show like a new home. See documents for a complete list of renovations and dates. Stately first impression w/circular driveway & meticulous landscaping. Double entry doors lead to the open floor plan w/hickory hardwood floors, a kitchen a chef will drool over, a 2 story family room w/60'' linear gas fireplace & wonderful views out to the pool & lagoon. The kitchen not only has an 8 burner gas wolf double range, but also has a Monogram french door oven as well as an Monogram Advantium oven. The 48'' Subzero fridge/freezer can hold all the food. You will be able to prepare every holiday meal!! Seller in process of replacing (2) wine chillers in kitchen w/cabinets. Two- 55 bottle wine chillers in the bar area in the FR. On the first floor is also an office (or could be 5th BR), pool bath as well as the Primary Suite. Primary bath renovated w/huge walk in shower, with oversized rain head as well as wall heads. Custom counters, cabinets and light fixtures. Primary closet with built ins. An open stairway leads to the 2nd floor with a large loft area that overlooks the Family room. 3 additional spacious bedrooms and 2 full baths are also on the 2nd floor. The front bedroom has a built in play area or extra storage. There is a 2nd staircase from the 2nd floor that leads back to the kitchen. Outside is the wonderful pool area with a 2 story screen area overlooking the lagoon. The pool plaster, tile, pump, and electronic panel were just replaced in November 2024. Adjacent to the pool area is a large pavered firepit area where you can enjoy family and friends while overlooking the private lagoon. Look on the feature sheet to see the entire list of improvements to this wonderful home. The King and Bear amenities are available to residents of Royal Pines. The state-of-the art fitness center was completed in the fall of 2018. It's five thousand square feet under roof containing all the latest in work-out equipment. There's also a separate studio that accommodates an array of physical fitness classes. The Courtside Pavilion is a modernized gathering center ideal for large parties, events, and meetings. The Poolside Pavilion is more intimate, designed for smaller groups, and comes with a covered terrace ideal for outside socializing. Given its name, it sits adjacent to the community's two pools. One is zero-entry, the other is full-sized, perfect for laps. One is heated (in winter), both are fully lit and open into the night. Adjacent to the pools is an adventurous playground for the smaller ones in the family. Three lighted tennis courts and four lighted pickleball courts accommodate plenty of play. Within walking distance from the house (1.5 miles) is The Neighborhood Park at World Golf Village where there are grassed fields for soccer, football, and baseball, along with two pickleball courts and a dog park for the family pet. The HOA fees of $617 per quarter include Royal Pines- $388, SJNW Residential- $200, SJNW Master- $29.


Florida, St Johns County, St Augustine, USA

NEAREST AIRPORTS

Distances are straight line measurements
  • Jacksonville(International)
    33.4 miles
  • Gainesville(Local)
    51.0 miles
  • Daytona Beach(Local)
    58.5 miles

Advice on buying American property

Learn everything you need to know to successfully find and buy a property in USA.

About John D Wood International, USA 2

Established in Mayfair in 1872, John D Wood & Co. has 150 years experience specialising in selling and letting properties in London, the South of England, country and internationally, as well as staff relocation services and interior consultancy, and are committed to offering a bespoke service, a strategic approach to marketing, and local expertise that has been trusted for generations.

When we promise the world, we mean it.

We cover 30+ countries through a network of strategically handpicked international partner agents who are leading agents in their markets.

Together we offer an international reach, with local expertise, and a commitment to excellence. Whether you're seeking a rural holiday home, a beachfront villa, or a city centre apartment, we can help make your dream a reality.

Notes

These notes are private, only you can see them.

This is a property advertisement provided and maintained by John D Wood International, USA 2 (reference 20226422_14183776) and does not constitute property particulars. Whilst we require advertisers to act with best practice and provide accurate information, we can only publish advertisements in good faith and have not verified any claims or statements or inspected any of the properties, locations or opportunities promoted. Rightmove does not own or control and is not responsible for the properties, opportunities, website content, products or services provided or promoted by third parties and makes no warranties or representations as to the accuracy, completeness, legality, performance or suitability of any of the foregoing. We therefore accept no liability arising from any reliance made by any reader or person to whom this information is made available to. You must perform your own research and seek independent professional advice before making any decision to purchase or invest in overseas property.

Email agent

Email agent