Skip to content

Office for sale

Unit 2 Opus Park, Old Ipswich Road, IP6

£475,000

£400.17 per sq ft

Business rates & charges may apply

Whybrow & Dodds Ltd, Colchester
SIZE AVAILABLE

1,187 sq ft

110 sq m

SECTOR

Office for sale

Key features

  • Office suites of 1,800 – 9,000 ft2
  • High Speed Fibre
  • Generous on-site car parking
  • Additional overflow car park
  • Easy Access A14 (J52)

Description

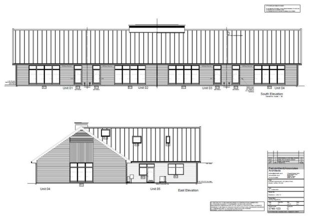
Opus Park is a development of 14 contemporary business units providing open plan office accommodation with potential to incorporate further offices at first floor level, subject to obtaining the necessary consents. Each unit is to be provided with air source heat pumps to provide both heating and cooling, perimeter trunking, carpet tiles to flooring, LED lighting, WC and kitchenette facilities. The offices are to be set in landscaped grounds each with allocated car parking with the benefit of further overflow communal parking available.

The offices are to be provided with electrics ready for the installation of an EV charging point and the roofs are south facing pitch roofs to allow for future PV installation.

Brochures

Unit 2 Opus Park, Old Ipswich Road, IP6

NEAREST STATIONS

Distances are straight line measurements from the centre of the postcode
  • Westerfield Station2.8 miles
  • Ipswich Station3.8 miles
  • Needham Market Station4.2 miles

About Whybrow & Dodds Ltd, Colchester

2 De Grey Square De Grey Road, Colchester, CO4 5YQ

Our Approach

Whybrow Chartered Surveyors are committed to delivering the highest levels of customer service across our business and have adopted the principles set out in the Government Standard for Customer Service Excellence as best practice.

It is by adopting these standards that we have developed a culture where the customer is at the centre of our business and where we drive towards continuous improvement in the areas of:

• Delivery

• Timeliness & Quality

• Information

• Professionalism & Colleague Attitude

At the core of this policy is our commitment to:

• Be polite and helpful

• Explain our actions and decisions clearly.

• Be transparent.

• Get it right first time. When mistakes happen, we will adopt a no blame culture, admit our errors, put things right and learn from our mistakes.

• Measure our performance against our targets and standards.

• Drive towards continuous improvement.

• Never promise what we can not deliver.

Our Mission Statement

Whybrow aims to become one of the leading Chartered Surveyors practices in the Eastern Region delivering the highest levels of personal service, professional advice and commercial solutions to clients, while providing a quality working environment for staff and continually striving to excel through innovation.

The Whybrow Way

Our people are our best asset and our overriding aim is ‘flourish’ – we want our staff, our clients and customers all to flourish in whatever they are doing, and anything we can do to make this happen is what we strive to for.

In our work family and daily routines we hold fast to three key values that reflect not only what we are for our clients and customers, but what we are for each other and that is -

Inspired

We are ordinary people endeavouring to do extraordinary things. We will encourage and be encouraged through our own actions and the actions of others to be extra ordinary and a better example in order to inspire.

Generous

We will be giving of time, knowledge, understanding, person and spirit. We have a willingness to help, support, nurture, inspire and drive.

Driven

We have a desire to achieve success, to be progressive and show unlimited passion for the goal ahead. We will show a determination to succeed and move forward together.

Commercial Agency

Commercial Agency is a core service provided by Whybrow. The department has extensive experience in property and land transactions throughout the Eastern Region, for both private and public sector clients, individuals and family trusts.

Our Agency Department operates in various sectors including:

• Retail

• Offices

• Industrial / Manufacturing & Warehousing

• Development Land

• Investment

and provides the following services:

• Freehold and leasehold acquisition and disposal advice

• Property marketing strategies

• Investment appraisals

• Property and investment searches

• Land disposal and acquisition

Our commercial market experience and regional knowledge place Whybrow among the leading property agents in the Eastern Region.

The department has developed and utilises an Agency Pilot database, which holds property and contact details for mailshots and direct marketing.

Notes

These notes are private, only you can see them.

Disclaimer - Property reference WHY230067. The information displayed about this property comprises a property advertisement. Rightmove.co.uk makes no warranty as to the accuracy or completeness of the advertisement or any linked or associated information, and Rightmove has no control over the content. This property advertisement does not constitute property particulars. The information is provided and maintained by Whybrow & Dodds Ltd, Colchester. Please contact the selling agent or developer directly to obtain any information which may be available under the terms of The Energy Performance of Buildings (Certificates and Inspections) (England and Wales) Regulations 2007 or the Home Report if in relation to a residential property in Scotland.

Map data ©OpenStreetMap contributors.