
Plot for sale
Academy Lane, Arbroath, DD11
- PROPERTY TYPE
Plot
- SIZE
Ask agent
Key features
- Building Plot
- Full Planning for 4 Bed Det Property
- Ideal Central Location
- Investment Opportunity
- Close to Local Amenities
Description
Ideal opportunity to purchase this centrally located plot which has planning in principle for one dwelling house. The plot has an ideal central location within walking distance to all local amenities and will appeal to many buyers .The building plot presents a rare opportunity to create a custom home tailored to your exact specifications. Whether you're looking to build a family home, a retirement retreat, or an investment property, this plot provides the perfect canvas.
*Investment Potential: The plot offers excellent investment potential, with the area experiencing steady growth and high demand for new homes.
*Eco-Friendly Options: Opportunity to incorporate eco-friendly and sustainable building practices, including solar panels, rainwater harvesting systems, and energy-efficient materials.
*Proximity to Nature: Close to parks, and the Beach, providing ample opportunities for outdoor activities and a healthy lifestyle.
*Transport Links: Excellent transport links, including nearby bus stops, train stations, and major roadways, making commuting and travel convenient.
*Local Amenities: Easy access to shopping centers, restaurants, healthcare facilities, and entertainment options, enhancing your quality of life.
*Educational Institutions: Within the catchment area of highly-rated schools and educational institutions, making it an ideal location for families with children
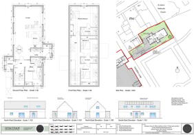
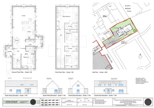
Angus Council Planning Ref - 24/00312/FULL
Images are for illustration purposes only.
Brochures
Brochure 1Academy Lane, Arbroath, DD11
NEAREST STATIONS
Distances are straight line measurements from the centre of the postcode- Arbroath Station0.4 miles
- Carnoustie Station6.4 miles
Notes
Disclaimer - Property reference 28579186. The information displayed about this property comprises a property advertisement. Rightmove.co.uk makes no warranty as to the accuracy or completeness of the advertisement or any linked or associated information, and Rightmove has no control over the content. This property advertisement does not constitute property particulars. The information is provided and maintained by Thorntons Property Services, Dundee. Please contact the selling agent or developer directly to obtain any information which may be available under the terms of The Energy Performance of Buildings (Certificates and Inspections) (England and Wales) Regulations 2007 or the Home Report if in relation to a residential property in Scotland.
Map data ©OpenStreetMap contributors.









