Station Road, Clacton-on-Sea
Letting details
- Let available date:
- Ask agent
- Deposit:
- £1,750A deposit provides security for a landlord against damage, or unpaid rent by a tenant.Read more about deposit in our glossary page.
- Let type:
- Long term
- PROPERTY TYPE
Office
- SIZE
Ask agent
Key features
- Available Now
- Prominent Town Centre Location
- Commercial Office Premises to Rent
- Kitchen Area
- W.C
- Seven Seperate Office Spaces
- Neutrally Decorated
- Three Parking Spaces Negotiable
- Approx 1,200 Sq Ft
Description
Deposit: £1750
Type of Lease: Full maintaining, repairing and insuring lease
Lease Length: 5 year lease with negotiable break clause
The rent and deposit is negotiable upon application.
Additional notes: There are three parking spaces behind the premises which the landlord is offering at £200 per quarter, per parking space. Please note this is additional to the agreed monthly rent.
Holding Deposit: £500
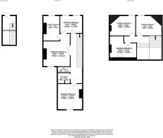
Details with approximate only room sizes
Entrance door to
Communal Hall
Stairs to first floor landing, door leading to
Office 2
w: 3.38m x l: 3.69m (w: 11' 1" x l: 12' 1")
Window to rear
Kitchen
w: 1.53m x l: 2.15m (w: 5' x l: 7' 1")
Window to side, a range of white fronted base level units including cupboards and drawers, additional storage cupboard.
Wet Room
w: 0.76m x l: 1.84m (w: 2' 6" x l: 6' )
Window to side, low level W.C and pedestal wash hand basin
Office 1
w: 3.97m x l: 3.68m (w: 13' x l: 12' 1")
Window to rear
Office 3
w: 2.45m x l: 3.67m (w: 8' x l: 12' )
Window to front
Office 4
w: 3.36m x l: 2.46m (w: 11' x l: 8' 1")
Two windows to front
Second Floor Landing
Access to all second floor rooms
Room 1
w: 3.96m x l: 3.04m (w: 13' x l: 10' )
Window to front, restricted head height in some areas due to being in the eaves.
Room 2
w: 3.96m x l: 3.04m (w: 13' x l: 10' )
Window to front, restricted head height in some areas due to being in the eaves.
Room 3
w: 3.99m x l: 0m (w: 13' 1" x l: )
Velux window, restricted head height in some areas due to being in the eaves.
Outside
Additional 3 parking spaces can be purchased for £200 per quarter per space
Brochures
BrochureEnergy Performance Certificates
EPCStation Road, Clacton-on-Sea
NEAREST STATIONS
Distances are straight line measurements from the centre of the postcode- Clacton Station0.2 miles
- Thorpe-le-Soken Station4.0 miles
- Kirby Cross Station4.4 miles
Notes
Disclaimer - Property reference CL0094. The information displayed about this property comprises a property advertisement. Rightmove.co.uk makes no warranty as to the accuracy or completeness of the advertisement or any linked or associated information, and Rightmove has no control over the content. This property advertisement does not constitute property particulars. The information is provided and maintained by Mike Vincent & Son, Clacton On Sea. Please contact the selling agent or developer directly to obtain any information which may be available under the terms of The Energy Performance of Buildings (Certificates and Inspections) (England and Wales) Regulations 2007 or the Home Report if in relation to a residential property in Scotland.
Map data ©OpenStreetMap contributors.





