Algarve, Faro, Portugal
- PROPERTY TYPE
Villa
- BEDROOMS
3
- BATHROOMS
3
- SIZE
1,561 sq ft
145 sq m
Key features
- 3 bedrooms
- Total area: 446 sqm
- House area: 145,9 sqm
- Swimming Pool
- Air conditioning
- 3 bathrooms
- Construction year: 2020
Description
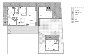
Walk through the gate into the small front garden and through the front door you will find the following accommodation: Three double bedrooms, one of which benefits from an en-suite shower room and there is a further family shower room. The spacious main L-shaped open plan kitchen/dining/sitting room opens out to the garden with full sliding doors that glide fully into the wall allowing the living space to extend effortlessly to the pool area. The kitchen is well-fitted with a good range of appliances and spacious island. There is a useful separate utility/pantry.
Set in the garden with it´s own covered veranda, the detached annex benefits from a main living/additional sleeping room with kitchenette and bunk beds, a double bedroom and shower room offers the flexibility of guest accommodation or home office/gym. Well insulated and with the benefit of air conditioning. Tucked neatly behind this is a covered workshop area.
The garden is fully enclosed with double gates leading to secure off-road parking with space for 2 cars. The L-shaped pool with swimming pool with surrounding terracing, pergola & hot tub offers a great area to relax and entertain: the astroturf lawn is set off by well-planted surrounding flower beds. Stairs from the garden also lead to a spacious roof terrace with both views across the countryside and to Faro: The solar hot water and air conditioning units for the property are located also on this roof area.
Offering both a perfect full-time home or ideal lock up and leave, an early viewing of this property is highly recommended. Price includes furniture including hot tub.
Key features:
Detached
Enclosed garden
Off road parking
Air conditioning
Solar hot water
Mains water
Mains sewage
Cisterna 5000m2 for rainwater collection
Swimming pool
Hot tub
Double glazing
Well insulated
Independent guest annex
Countryside views
Roof terrace
Furnished
This property is presented by Quintas and Casas, voted the best boutique real estate agency in Portugal in 2024.
REF: Framboesa
Algarve, Faro, Portugal
NEAREST AIRPORTS
Distances are straight line measurements- Faro(International)3.0 miles
Advice on buying Portuguese property
Learn everything you need to know to successfully find and buy a property in Portugal.
Notes
This is a property advertisement provided and maintained by Quintas and Casas, Loule (reference 235631_Framboesa) and does not constitute property particulars. Whilst we require advertisers to act with best practice and provide accurate information, we can only publish advertisements in good faith and have not verified any claims or statements or inspected any of the properties, locations or opportunities promoted. Rightmove does not own or control and is not responsible for the properties, opportunities, website content, products or services provided or promoted by third parties and makes no warranties or representations as to the accuracy, completeness, legality, performance or suitability of any of the foregoing. We therefore accept no liability arising from any reliance made by any reader or person to whom this information is made available to. You must perform your own research and seek independent professional advice before making any decision to purchase or invest in overseas property.





