Shop to lease
New Neighbourhood Centre, Matthew Telford Park, Scartho Top, Grimsby, Lincolnshire, DN33 3ER
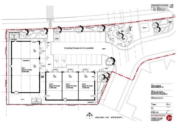
- SIZE AVAILABLE
1,050-3,358 sq ft
98-312 sq m
- SECTOR
Shop to lease
Lease details
- Lease available date:
- Ask agent
Key features
- Four brand new units, forming part of a new neighbourhood scheme - Available Summer 2025
- Close to Scartho Top development, which is expected provide over 2,000 new homes, and great transport links
Description
The property comprises four retail units, with three of these extending to around 97.50 sq m (1,050 sq ft) and the fourth larger unit to around 312 sq m (3,358 sq ft).
The property sits in the heart of the Neighbourhood Centre for the Scartho Top development, with an Aldi supermarket sitting adjacent, together with a new nursery school and doctors surgery, both of which are currently under construction.
The units will be finished off to an enhanced shell specification with shop fronts and services connected to each unit, ready for the ingoing occupiers to fit out.
The units should be available for ingoing occupiers by early summer 2025.
Brochures
New Neighbourhood Centre, Matthew Telford Park, Scartho Top, Grimsby, Lincolnshire, DN33 3ER
NEAREST STATIONS
Distances are straight line measurements from the centre of the postcode- Grimsby Town Station1.8 miles
- Great Coates Station2.6 miles
- Grimsby Docks Station2.6 miles
Notes
Disclaimer - Property reference 3020730LH. The information displayed about this property comprises a property advertisement. Rightmove.co.uk makes no warranty as to the accuracy or completeness of the advertisement or any linked or associated information, and Rightmove has no control over the content. This property advertisement does not constitute property particulars. The information is provided and maintained by Eddisons, Lincoln. Please contact the selling agent or developer directly to obtain any information which may be available under the terms of The Energy Performance of Buildings (Certificates and Inspections) (England and Wales) Regulations 2007 or the Home Report if in relation to a residential property in Scotland.
Map data ©OpenStreetMap contributors.




