
Kettleworks, Birmingham, B1

- PROPERTY TYPE
Apartment
- BEDROOMS
2
- BATHROOMS
1
- SIZE
Ask agent
Key features
- Leasehold
- Concierge
- Secure allocated parking
- Gymnasium
- No Chain
- Jewellery Quarter
Description
Birmingham's Jewellery Quarter is one of the city's most desirable areas, offering close proximity to the vibrant amenities of St. Paul's Square, including an array of bars, restaurants, and coffee shops. Additionally, it is just a short walk from Birmingham's Central Business District. The property benefits from excellent transport links, with easy access to Snow Hill and New Street train stations, as well as convenient connections to the A38 and M6, making it ideal for commuting drivers.
This stylish and contemporary two bedroom, one bathroom apartment is located in the highly sought-after Kettleworks development, offering residents a blend of modern amenities and prime location. This apartment features residence gym and 24 hour concierge.
The Kettleworks development in Birmingham’s Jewellery Quarter is a key part of the area's regeneration, blending industrial heritage with modern living. Originally a 19th-century factory run by the Bulpitt family, it was known for producing 'Swan' brand kettles and innovative kitchenware. The factory declined and closed by the 1970s.
Acquired in 2008 as part of the St. George’s Urban Village project, the site was redeveloped in two phases. The first transformed the historic structure into 220,000 sq ft of office space, while the second introduced 292 apartments and retail units, preserving the industrial character. Completed in 2019, Kettleworks is now a thriving residential and commercial hub, showcasing Birmingham’s commitment to urban renewal.
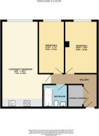
The property features:
Lounge/Kitchen/Diner (24'5" x 14'1" / 7.4m x 4.3m)
A large open-plan living space with ample room for dining and relaxation, complemented by a fully integrated kitchen.
Bedroom 1 (14'10" x 9'5" / 4.5m x 2.9m) – A well-sized double bedroom with plenty of space for furnishings.
Bedroom 2 (14'10" x 7'5" / 4.5m x 2.3m) – A versatile second bedroom, ideal as a guest room, study, or home office.
Bathroom – A modern, well-appointed bathroom with a bathtub, toilet, and sink.
Property Information
Tenure - Leasehold
Service Charge - £2,080 per annum.
Ground Rent - £350.00 per annum.
Local Authority - Birmingham City Council
Council tax band - D
EPC rating - D
Brochures
Particulars- COUNCIL TAXA payment made to your local authority in order to pay for local services like schools, libraries, and refuse collection. The amount you pay depends on the value of the property.Read more about council Tax in our glossary page.
- Band: D
- PARKINGDetails of how and where vehicles can be parked, and any associated costs.Read more about parking in our glossary page.
- Allocated
- GARDENA property has access to an outdoor space, which could be private or shared.
- Ask agent
- ACCESSIBILITYHow a property has been adapted to meet the needs of vulnerable or disabled individuals.Read more about accessibility in our glossary page.
- Ask agent
Kettleworks, Birmingham, B1
Add an important place to see how long it'd take to get there from our property listings.
__mins driving to your place
Get an instant, personalised result:
- Show sellers you’re serious
- Secure viewings faster with agents
- No impact on your credit score
Your mortgage
Notes
Staying secure when looking for property
Ensure you're up to date with our latest advice on how to avoid fraud or scams when looking for property online.
Visit our security centre to find out moreDisclaimer - Property reference GST250018. The information displayed about this property comprises a property advertisement. Rightmove.co.uk makes no warranty as to the accuracy or completeness of the advertisement or any linked or associated information, and Rightmove has no control over the content. This property advertisement does not constitute property particulars. The information is provided and maintained by Maguire Jackson, Birmingham. Please contact the selling agent or developer directly to obtain any information which may be available under the terms of The Energy Performance of Buildings (Certificates and Inspections) (England and Wales) Regulations 2007 or the Home Report if in relation to a residential property in Scotland.
*This is the average speed from the provider with the fastest broadband package available at this postcode. The average speed displayed is based on the download speeds of at least 50% of customers at peak time (8pm to 10pm). Fibre/cable services at the postcode are subject to availability and may differ between properties within a postcode. Speeds can be affected by a range of technical and environmental factors. The speed at the property may be lower than that listed above. You can check the estimated speed and confirm availability to a property prior to purchasing on the broadband provider's website. Providers may increase charges. The information is provided and maintained by Decision Technologies Limited. **This is indicative only and based on a 2-person household with multiple devices and simultaneous usage. Broadband performance is affected by multiple factors including number of occupants and devices, simultaneous usage, router range etc. For more information speak to your broadband provider.
Map data ©OpenStreetMap contributors.








