
Heath End Road, Great Missenden, HP16

- PROPERTY TYPE
Barn Conversion
- BEDROOMS
4
- BATHROOMS
2
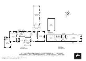
- SIZE
Ask agent
- TENUREDescribes how you own a property. There are different types of tenure - freehold, leasehold, and commonhold.Read more about tenure in our glossary page.
Freehold
Description
• 3/4 bedrooms
• 2 bathrooms
• Plot of approx. 3 acres
• Gas fired central heating
• Double glazing
• Garage and off street parking
• Party room
• Studio/treatment room that could be used as fourth bedroom or annexe
• Presented in beautiful condition
Entrance Hall
Vaulted, Indian slate floor, double glazed door through to a private courtyard garden.
Reception Room
Versatile space, vaulted, feature beams, flagged stone floor, three doors to the south-west facing outside, double glazed floor to ceiling picture windows overlooking a pond.
Kitchen
Range of matching base units, wall cabinets and displays cabinets, wooden worktop with inset Butler sink with single drainer and mixer
tap, integrated Smeg dishwasher, stainless steel Smeg Range with six ring gas burners, two fan ovens with plate warmer, stainless steel Smeg extractor hood over, American style fridge freezer, spotlights, Indian slate floor.
Dining Room
Contemporary style cast iron wood burner sat on a brick hearth, two radiators, wall lights, door to the outside, exposed timber beams, dresser unit with TV point above, Indian slate floor.
Utility Room
Matching base units and wall cabinets, worktop with inset one and half bowl sink unit with single drainer and mixer tap, plumbing for washing machine, storage cupboard, gas central heating boiler.
Sitting Room
Dual aspect, double glazed double doors to a south facing terrace overlooking the outside grounds and pond, contemporary styled free-
standing cast iron wood burning stove sat on a granite hearth, exposed timber beams, solid oak floor, radiator, wall lights.
Cloakroom
Modern matching white suite comprising enclosed cistern WC, oval
wash hand basin with side mixer tap and storage under, extractor fan, LVF vinyl floor radiator, spotlights.
Bedroom 1
Versatile space, triple aspect, solid oak floor, access to a small loft area, radiator.
Bedroom 2
Triple aspect, fitted carpet, under eaves storage cupboards, bedside reading lights, three Velux windows with blinds, built-in wardrobe
cupboards, radiator.
Bedroom 3
Dual aspect, fitted carpet, three Velux windows with blinds, built-in wardrobe cupboard, radiator.
Ensuite
Wash hand basin with mixer tap, low flush WC, oak floor, extractor fan, radiator, spotlight.
Master Bedroom
Dual aspect, laminate floor, feature paneling, TV point, built-in wardrobe
cupboards, additional storage, exposed timber beams, two radiators, wall lights.
Shower Room
Ensuite large walk-in shower cubicle with rain-water shower head, poly marble wash hand basin with waterfall mixer tap and storage cupboards under, enclosed cistern WC, LVF vinyl floor, extractor fan, radiator, spotlights.
Landing
Fitted carpet, Velux windows with blinds, storage cupboards, airing cupboard housing Megaflow pressurised hot water system, built-in
wardrobe cupboards, radiator.
Garage
With power and light and small workshop space.
Garden
Approximately 3 acres of recreational land, pond, courtyard garden, west facing landscaped garden with views across the grounds.
Brochures
Brochure 1- COUNCIL TAXA payment made to your local authority in order to pay for local services like schools, libraries, and refuse collection. The amount you pay depends on the value of the property.Read more about council Tax in our glossary page.
- Band: F
- PARKINGDetails of how and where vehicles can be parked, and any associated costs.Read more about parking in our glossary page.
- Driveway,Off street
- GARDENA property has access to an outdoor space, which could be private or shared.
- Yes
- ACCESSIBILITYHow a property has been adapted to meet the needs of vulnerable or disabled individuals.Read more about accessibility in our glossary page.
- Ask agent
Heath End Road, Great Missenden, HP16
Add an important place to see how long it'd take to get there from our property listings.
__mins driving to your place
Get an instant, personalised result:
- Show sellers you’re serious
- Secure viewings faster with agents
- No impact on your credit score
Your mortgage
Notes
Staying secure when looking for property
Ensure you're up to date with our latest advice on how to avoid fraud or scams when looking for property online.
Visit our security centre to find out moreDisclaimer - Property reference RX362234. The information displayed about this property comprises a property advertisement. Rightmove.co.uk makes no warranty as to the accuracy or completeness of the advertisement or any linked or associated information, and Rightmove has no control over the content. This property advertisement does not constitute property particulars. The information is provided and maintained by Jeremy Swan, Great Missenden. Please contact the selling agent or developer directly to obtain any information which may be available under the terms of The Energy Performance of Buildings (Certificates and Inspections) (England and Wales) Regulations 2007 or the Home Report if in relation to a residential property in Scotland.
*This is the average speed from the provider with the fastest broadband package available at this postcode. The average speed displayed is based on the download speeds of at least 50% of customers at peak time (8pm to 10pm). Fibre/cable services at the postcode are subject to availability and may differ between properties within a postcode. Speeds can be affected by a range of technical and environmental factors. The speed at the property may be lower than that listed above. You can check the estimated speed and confirm availability to a property prior to purchasing on the broadband provider's website. Providers may increase charges. The information is provided and maintained by Decision Technologies Limited. **This is indicative only and based on a 2-person household with multiple devices and simultaneous usage. Broadband performance is affected by multiple factors including number of occupants and devices, simultaneous usage, router range etc. For more information speak to your broadband provider.
Map data ©OpenStreetMap contributors.








