Callington

- PROPERTY TYPE
Bungalow
- BEDROOMS
3
- BATHROOMS
2
- SIZE
1,292 sq ft
120 sq m
- TENUREDescribes how you own a property. There are different types of tenure - freehold, leasehold, and commonhold.Read more about tenure in our glossary page.
Freehold
Description
Situation:-
Callington is a small town with a population of around 6,500 people and is situated in the heart of South East Cornwall, around 15 miles from the City of Plymouth. It has Infant and Junior Schools, along with a Community College with an enviable reputation which specialises in Sports and Music. The town has a Tesco store, B&M, range of local shops, Gym, Doctors and Dentist surgeries and Bus Service. There are many recreational pursuits nearby that can be enjoyed.
Hallway:-
Composite front door with eyespy, and letter box with a frosted glass panel to the side.
Access to the cloakroom, kitchen/dining room, lounge and master bedroom. Useful storage cupboard housing the consumer units and power, stairs rising to the first floor, radiator, karndean flooring.
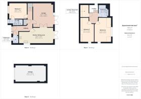
Cloakroom:- - 3'9" (1.14m) x 5'0" (1.52m)
Comprises of low level WC, wash hand basin with tiled splashback, radiator, uPVC frosted window to the front elevation, blinds, karndean flooring.
Kitchen/Dining room:- - 22'9" (6.93m) x 10'6" (3.2m)
Ftted with a range of modern wall and base units, square edged worktop surfaces with matching upstands, drawer space, pan drawers, pull out space saver cabinets, 4 ring induction hob with stainless steel and glass canopy above, glass splashback, plumbing and space for a washing machine, eye level oven/grill, built in fridge/freezer, stainless steel sink unit with 1.5 bowl and drainer with a swan neck tap over, uPVC double glazed window to the side elevation, blinds, spotlighting, breakfast bar, with seating area beneath, usb points.
Area for dining room table and chairs and further reception furniture if required, uPVC double glazed French doors giving access to the rear patio and garden, radiator and karndean flooring.
Lounge:- - 13'4" (4.06m) x 16'0" (4.88m)
This room can be accessed via the hallway, or via internal french doors with inset glass panels from the dining area. Spacious lounge with ample room for reception furniture, under stairs storage cupboard, radiator, uPVC double glazed window to the rear elevation and uPVC double glazed French doors again giving access to the patio and garden with views across Caradon and the countryside.
Master Bedroom:- - 12'4" (3.76m) x 10'6" (3.2m)
Good sized double bedroom with uPVC double glazed window to the front elevation, blinds, radiator, internal door to:-
En-suite:- - 8'9" (2.67m) x 3'9" (1.14m)
Comprising of encased system low level WC, large wash hand basin, over sized shower cubicle housing the waterfall shower head, control system, tray and sliding door with screen. Heated towel rail, part tiling to the walls, shaver point, uPVC double glazed frosted window with blinds to the front elevation and karndean flooring.
Landing:-
Shaped landing with uPVC double glazed window to the side elevation. Access through to the bedrooms, bathroom and store/laundry room. Radiator and loft access.
Bedroom Two:- - 12'0" (3.66m) x 17'6" (5.33m)
Large double bedroom with uPVC double glazed windows to the side and rear elevations enjoying views across woodlands, nearby and far reaching countryside across to Caradon. Recessed area ideal for wardrobe and bedroom furniture, radiator.
Bedroom Three:- - 10'1" (3.07m) x 17'5" (5.31m)
Double bedroom with a velux window to the front elevation with views to the countryside. uPVC double glazed window to the side elevation again enjoying views. Radiator.
Laundry Room/Store:- - 6'2" (1.88m) x 8'10" (2.69m)
Housing the central heating and hot water boiler. This room is versatile and could be adapted for individual preferences.
Bathroom:- - 6'6" (1.98m) x 9'0" (2.74m)
Suite comprising of encased system low level WC, large wash hand basin, bath with waterfall and half height shower heads, Karndean flooring, part tiling to the walls. Shaver point, heated towel rail and extractor.
Outside:-
To the front a paved pathway leads up to the front entrance to a storm porch. The front gardens include lawns with bark finished sections and natural hedges.To the side there is also barked finished shrub beds. To the left hand side of the property there is a driveway suitable for approximately two/three vehicles leading up to the garage.
To the rear of the property there is a paved patio ideal for alfresco dining and entertaining. The garden is mainly laid to lawn with shaped flower and shrub beds. Pebble finished area ideal for bin stoarage etc..
The garden is enclosed with walling and there is an access gate to the side. Outside tap.
Garage:-
Comprising of an up and over door, power and light.
Services:-
Gas, electric, water and drainage.
Council Tax:-
According to Cornwall Council the council tax band is D.
Service Charge:-
The current service charge is £258.00 per annum paid by each property.
Notice
Please note we have not tested any apparatus, fixtures, fittings, or services. Interested parties must undertake their own investigation into the working order of these items. All measurements are approximate and photographs provided for guidance only.
Brochures
Brochure 1Web Details- COUNCIL TAXA payment made to your local authority in order to pay for local services like schools, libraries, and refuse collection. The amount you pay depends on the value of the property.Read more about council Tax in our glossary page.
- Band: D
- PARKINGDetails of how and where vehicles can be parked, and any associated costs.Read more about parking in our glossary page.
- Garage,Off street
- GARDENA property has access to an outdoor space, which could be private or shared.
- Private garden
- ACCESSIBILITYHow a property has been adapted to meet the needs of vulnerable or disabled individuals.Read more about accessibility in our glossary page.
- Ask agent
Callington
Add an important place to see how long it'd take to get there from our property listings.
__mins driving to your place
Get an instant, personalised result:
- Show sellers you’re serious
- Secure viewings faster with agents
- No impact on your credit score

Your mortgage
Notes
Staying secure when looking for property
Ensure you're up to date with our latest advice on how to avoid fraud or scams when looking for property online.
Visit our security centre to find out moreDisclaimer - Property reference 1468_DNOT. The information displayed about this property comprises a property advertisement. Rightmove.co.uk makes no warranty as to the accuracy or completeness of the advertisement or any linked or associated information, and Rightmove has no control over the content. This property advertisement does not constitute property particulars. The information is provided and maintained by Dawson Nott Estate Agents, Callington. Please contact the selling agent or developer directly to obtain any information which may be available under the terms of The Energy Performance of Buildings (Certificates and Inspections) (England and Wales) Regulations 2007 or the Home Report if in relation to a residential property in Scotland.
*This is the average speed from the provider with the fastest broadband package available at this postcode. The average speed displayed is based on the download speeds of at least 50% of customers at peak time (8pm to 10pm). Fibre/cable services at the postcode are subject to availability and may differ between properties within a postcode. Speeds can be affected by a range of technical and environmental factors. The speed at the property may be lower than that listed above. You can check the estimated speed and confirm availability to a property prior to purchasing on the broadband provider's website. Providers may increase charges. The information is provided and maintained by Decision Technologies Limited. **This is indicative only and based on a 2-person household with multiple devices and simultaneous usage. Broadband performance is affected by multiple factors including number of occupants and devices, simultaneous usage, router range etc. For more information speak to your broadband provider.
Map data ©OpenStreetMap contributors.




