
Elmleigh, Midhurst, GU29

- PROPERTY TYPE
Semi-Detached
- BEDROOMS
3
- BATHROOMS
2
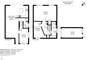
- SIZE
1,181 sq ft
110 sq m
- TENUREDescribes how you own a property. There are different types of tenure - freehold, leasehold, and commonhold.Read more about tenure in our glossary page.
Freehold
Key features
- Spacious Open Plan Layout
- Three Bedrooms / Two Bathrooms
- Single Garage and Driveway
- Quiet Residential Close
- Walking Distance to Town
- Ability for Ground Floor Living
- Superbly Presented
- Semi-Detached House
Description
Nestled in a sought-after and peaceful cul-de-sac, this beautifully presented home offers an exceptional living experience, having undergone a thoughtful refurbishment to create a stylish and versatile space. Available with no forward chain, this impressive three-bedroom residence presents an exciting opportunity for growing families, with the potential for easy conversion into a four-bedroom home.
Upon entering, you are greeted by a bright and spacious open-plan living, dining, and kitchen area, designed to offer a seamless flow, perfect for modern family life. Bi-fold doors extend the living space outdoors, leading to a charming rear garden with a patio and lawn, bordered by mature shrubs—ideal for relaxing and entertaining. The ground floor further benefits from a shower room and an additional bedroom, providing ground floor living or a versatile space which can be used as a snug or study.
Upstairs, the accommodation continues to impress with a well-appointed family bathroom featuring a separate bath and shower. The generous master bedroom offers potential for division into two rooms if desired, while a further double bedroom provides ample space and comfort.
Externally, the property boasts a single garage and a private driveway, ensuring convenient off-road parking.
EPC Rating: D
Kitchen / Dining / Sitting Room (6.2m x 8.5m)
Bedroom 3 (2.43m x 3.93m)
Bedroom 1 (4.11m x 5.92m)
Bedroom 2 (3.43m x 4.36m)
Parking - Garage
5.5m x 2.58m
Parking - Driveway
Brochures
Property Brochure- COUNCIL TAXA payment made to your local authority in order to pay for local services like schools, libraries, and refuse collection. The amount you pay depends on the value of the property.Read more about council Tax in our glossary page.
- Band: D
- PARKINGDetails of how and where vehicles can be parked, and any associated costs.Read more about parking in our glossary page.
- Garage,Driveway
- GARDENA property has access to an outdoor space, which could be private or shared.
- Private garden
- ACCESSIBILITYHow a property has been adapted to meet the needs of vulnerable or disabled individuals.Read more about accessibility in our glossary page.
- Ask agent
Elmleigh, Midhurst, GU29
Add an important place to see how long it'd take to get there from our property listings.
__mins driving to your place
Get an instant, personalised result:
- Show sellers you’re serious
- Secure viewings faster with agents
- No impact on your credit score
Your mortgage
Notes
Staying secure when looking for property
Ensure you're up to date with our latest advice on how to avoid fraud or scams when looking for property online.
Visit our security centre to find out moreDisclaimer - Property reference 618cc9f6-7a3b-40ed-883e-e1e218705550. The information displayed about this property comprises a property advertisement. Rightmove.co.uk makes no warranty as to the accuracy or completeness of the advertisement or any linked or associated information, and Rightmove has no control over the content. This property advertisement does not constitute property particulars. The information is provided and maintained by Henry Adams, Midhurst. Please contact the selling agent or developer directly to obtain any information which may be available under the terms of The Energy Performance of Buildings (Certificates and Inspections) (England and Wales) Regulations 2007 or the Home Report if in relation to a residential property in Scotland.
*This is the average speed from the provider with the fastest broadband package available at this postcode. The average speed displayed is based on the download speeds of at least 50% of customers at peak time (8pm to 10pm). Fibre/cable services at the postcode are subject to availability and may differ between properties within a postcode. Speeds can be affected by a range of technical and environmental factors. The speed at the property may be lower than that listed above. You can check the estimated speed and confirm availability to a property prior to purchasing on the broadband provider's website. Providers may increase charges. The information is provided and maintained by Decision Technologies Limited. **This is indicative only and based on a 2-person household with multiple devices and simultaneous usage. Broadband performance is affected by multiple factors including number of occupants and devices, simultaneous usage, router range etc. For more information speak to your broadband provider.
Map data ©OpenStreetMap contributors.








