Unit 2 Amsterdam Road, Sutton Fields Industrial Estate, Hull, East Yorkshire, HU7 0XF
- SIZE AVAILABLE
26,422 sq ft
2,455 sq m
- SECTOR
Light industrial facility for sale
Key features
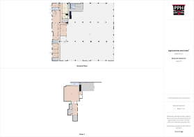
- Multi-functional industrial unit of 26,422 sq ft
- Excellent industrial/trade location
- Self-contained fully fenced enclosed site
- High quality office fit out
- Available on a new lease or for sale
Description
Internally the workshop accommodation has an internal eaves height of approximately 4.8 metres and benefits from two automatic roller shutter doors and gas fired warm air blowers.
The offices at ground level provide a mix of cellular and open plan space plus a reception area, boardroom, kitchen, WCs and locker rooms. The first floor/mezzanine provides further open plan offices and storage accommodation.
Externally the unit has a large, dedicated service yard with carparking which benefits from palisade perimeter fencing and entrance gate.
Energy Performance Certificates
EPC CertificateBrochures
Unit 2 Amsterdam Road, Sutton Fields Industrial Estate, Hull, East Yorkshire, HU7 0XF
NEAREST STATIONS
Distances are straight line measurements from the centre of the postcode- Hull Station2.5 miles
- Cottingham Station3.3 miles
- Beverley Station6.0 miles
Notes
Disclaimer - Property reference 23237FH. The information displayed about this property comprises a property advertisement. Rightmove.co.uk makes no warranty as to the accuracy or completeness of the advertisement or any linked or associated information, and Rightmove has no control over the content. This property advertisement does not constitute property particulars. The information is provided and maintained by PPH Commercial Limited, Hull. Please contact the selling agent or developer directly to obtain any information which may be available under the terms of The Energy Performance of Buildings (Certificates and Inspections) (England and Wales) Regulations 2007 or the Home Report if in relation to a residential property in Scotland.
Map data ©OpenStreetMap contributors.





