
Hurst Road, East Molesey, KT8
- PROPERTY TYPE
Land
- SIZE
Ask agent
Description
Nestled in a highly desirable position overlooking the picturesque Hurst Park and moments from the River Thames, this magnificent plot presents a rare chance to design and build a bespoke family home in an idyllic location.
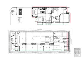
Development Details
This rectangular plot, set within an affluent residential area, boasts impressive potential:
A spectacular 5-bedroom residence boasting circa 6,500SqFt of internal accommodation, arranged over a three-storey layout plus a basement. The groundwork is already laid, including a sunken swimming pool, steel frame, and robust waterproof concrete (Sika) construction. The basement design includes a swimming pool, gymnasium/studio, bar and changing area, offering a truly special indoor leisure complex.
The current contractor is available for clients who are looking at a self-build. A full pricing schedule to complete the works along with build timelines are available upon request. All existing works have the relevant warranties which are transferrable to the new buyer.
Prime Location
Perfectly situated within walking distance of Molesey and Hampton Court Village, this property offers a charming blend of local amenities, boutique shops, delightful restaurants, and cosy pubs. For families, a range of excellent schools are nearby, catering to all age groups.
Commuters will enjoy excellent connections via rail from Hampton Court to London Waterloo (approximately 40 minutes) and easy access to the A3, M3, and M25 for journeys further afield. Nearby towns like Kingston and Walton provide a wealth of additional shopping and leisure options.
This is an unmissable opportunity to craft a dream home or profitable development in one of Surrey’s most sought-after locations.
Brochures
Brochure 1Hurst Road, East Molesey, KT8
NEAREST STATIONS
Distances are straight line measurements from the centre of the postcode- Hampton Court Station0.4 miles
- Hampton Station1.2 miles
- Thames Ditton Station1.3 miles
Notes
Disclaimer - Property reference RX534559. The information displayed about this property comprises a property advertisement. Rightmove.co.uk makes no warranty as to the accuracy or completeness of the advertisement or any linked or associated information, and Rightmove has no control over the content. This property advertisement does not constitute property particulars. The information is provided and maintained by Fine & Country, Surrey. Please contact the selling agent or developer directly to obtain any information which may be available under the terms of The Energy Performance of Buildings (Certificates and Inspections) (England and Wales) Regulations 2007 or the Home Report if in relation to a residential property in Scotland.
Map data ©OpenStreetMap contributors.








