75 Bayham Street, London, NW1 0AA
- SIZE AVAILABLE
4,866 sq ft
452 sq m
- SECTOR
Office for sale
Key features
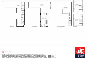
- Total area - 4,866 square feet
- Self-contained HQ office
- Excellent natural light throughout
- Full air conditioning
- Passenger lift
- Original character features
- Open plan floor plates
- Two minutes' walk from Camden Station
Description
75 Bayham Street offers a comprehensively refurbished self-contained Georgian era terrace warehouse arranged over lower ground to second floor. The property benefits from a fully glazed front entrance offering an attractive double height reception with direct views of the upper and lower ground floors. The lower half of the building offers largely open plan floor plates with exposed air conditioning services and white painted brickwork adding to the warehouse character.
Glazed light wells run the full length of the floors offering a good level of natural light to all floors including the lower ground. The second floor benefits from original character exposed roof trusses married up with an engineered floor and excellent natural light via modern sash windows to the front and rear facades. A passenger lift alongside attractive stairwell offer access to all floors.
Location
Located on Bayham Street in Camden a vibrant hub of culture and creativity. From its bustling market places to its range of bars, restaurants and cafes to include such venues as Blues Kitchen, BrewDog, Hache and all that Camden Market has to offer.
Conveniently located a two minute walk from Camden Station which offers quick links into Kings Cross and beyond with numerous bus routes into Central London.
Viewings
By appointment with Stirling Ackroyd
Energy Performance Certificates
EPCEPCBrochures
75 Bayham Street, London, NW1 0AA
NEAREST STATIONS
Distances are straight line measurements from the centre of the postcode- Mornington Crescent Station0.2 miles
- Camden Town Station0.2 miles
- Camden Road Station0.3 miles
Notes
Disclaimer - Property reference 277204-1. The information displayed about this property comprises a property advertisement. Rightmove.co.uk makes no warranty as to the accuracy or completeness of the advertisement or any linked or associated information, and Rightmove has no control over the content. This property advertisement does not constitute property particulars. The information is provided and maintained by Stirling Ackroyd, Commercial. Please contact the selling agent or developer directly to obtain any information which may be available under the terms of The Energy Performance of Buildings (Certificates and Inspections) (England and Wales) Regulations 2007 or the Home Report if in relation to a residential property in Scotland.
Map data ©OpenStreetMap contributors.





