Skip to content
NEW HOME

New 1+ Bed Apartment near the Gondola, Morillon, France

£298,292
€342,000
France Property Angels, France
PROPERTY TYPE

Apartment

BEDROOMS

1

SIZE

Ask agent

Key features

  • Central Morillon
  • 1 "plus" Bedrooms
  • 1 Bathroom
  • New Build
  • Off Plan
  • Near Morillon Gondola
  • Balcony
  • Ski Locker
  • Parking

Description

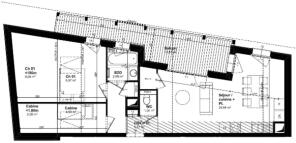
A new program being offered off-plan, L'Honorable is condominium of only 5 apartments located just 100m from the Morillon Gondola.Apartment 201 is on the second floor with a surface area of 49m2. It includes an open plan living room (29m2) with kitchenette and access to the balcony, a bedroom with storage, "coin cabinet" with storage, bathroom and a separate WC.This apartment also benefits from a covered parking, a shared bike store, and a ski locker.The apartment is offered to off-plan with reduced notary fees, delivery is scheduled for the end of 2025. Possibility of purchasing a garage. High-end services and RE 2020 energy performance. Morillon makes up one of the 5 resorts in the famous Grand Massif, it is a pretty Savoyard village in the French Alps. Steeped in tradition and charm and situated in the beautiful Giffre Valley. Morillon offers amazing skiing in winter and an abundance of outdoor activities throughout summer. It has also been awarded the French government's prestigious "Famille Plus" award for it's excellent children's facilities.

Description
A new program being offered off-plan, L'Honorable is condominium of only 5 apartments located just 100m from the Morillon Gondola.

Detail
Apartment 201 is on the second floor with a surface area of 49m2. It includes an open plan living room (29m2) with kitchenette and access to the balcony, a bedroom with storage, "coin cabinet" with storage, bathroom and a separate WC.This apartment also benefits from a covered parking, a shared bike store, and a ski locker.The apartment is offered to off-plan with reduced notary fees, delivery is scheduled for the end of 2025. Possibility of purchasing a garage. High-end services and RE 2020 energy performance.

Morillon
Morillon makes up one of the 5 resorts in the famous Grand Massif, it is a pretty Savoyard village in the French Alps. Steeped in tradition and charm and situated in the beautiful Giffre Valley. Morillon offers amazing skiing in winter and an abundance of outdoor activities throughout summer. It has also been awarded the French government's prestigious "Famille Plus" award for it's excellent children's facilities.

About Us
France Property Angels - We are an English Speaking Estate Agent specialising in the international market. We are based in France and have 20 years of experience. Our clients have access to our extensive property portfolio and benefit from our free property finding service. Clients who have bought through us are particularly complimentary about the standard of service we provide throughout the buying process.

Sales Details
Partner Agent Mandate - Delegation. By enquiring about this property you are authorising us to pass your contact details to our partner estate agents.Agency fees payable by vendor.This property is part of residence that comprise of 5 principle lots.Co-ownership charges for this property: To be defined.
Energy Rating (DPE): To be defined. Les informations sur les risques auxquels ce bien est exposé sont disponibles sur le site Géorisques:

Contact Us
Contact us on: +44 (0) or

New 1+ Bed Apartment near the Gondola, Morillon, France

Approximate location

NEAREST AIRPORTS

Distances are straight line measurements
  • Chambéry(International)
    49.1 miles
  • Satolas(International)
    81.2 miles

Advice on buying French property

Learn everything you need to know to successfully find and buy a property in France.

About France Property Angels, France

France

Our Aim

France Property Angels' objective is to find you your perfect property to buy. We stand out from the crowd by offering a first class service to all our clients wishing to purchase property in the northern Alps and the South of France. We listen to your individual property requirements then use our knowledge, resources and experience to find it for you.

Our Properties

As a registered French estate agent we have an excellent selection of properties on our books. In addition we work closely with an unrivalled network of reputable estate agents, developers, architects, and chalet builders. As a result we have the most extensive portfolio of properties available on the market in the northern Alps and the South of France

Areas we Cover

Alps: Portes du Soleil, Chamonix valley, St Gervais valley, Megeve and the Grand Massif

South of France: Provence, Luberon, Occitanie

Whether you are looking for a new home, rental investment, business opportunity or holiday home we will find it for you

Notes

These notes are private, only you can see them.

This is a property advertisement provided and maintained by France Property Angels, France (reference 99383_12399254) and does not constitute property particulars. Whilst we require advertisers to act with best practice and provide accurate information, we can only publish advertisements in good faith and have not verified any claims or statements or inspected any of the properties, locations or opportunities promoted. Rightmove does not own or control and is not responsible for the properties, opportunities, website content, products or services provided or promoted by third parties and makes no warranties or representations as to the accuracy, completeness, legality, performance or suitability of any of the foregoing. We therefore accept no liability arising from any reliance made by any reader or person to whom this information is made available to. You must perform your own research and seek independent professional advice before making any decision to purchase or invest in overseas property.

Email agent

Email agent