Residential development for sale
Oakwood Country Mews, Bramley Road, N14 4HX
- SIZE
Ask agent
- SECTOR
Residential development for sale
Key features
- The site extends to approximately 0.077 acres (0.031 ha) and comprises 21 garages
- The site entrance is at the junction of Westpole Avenue and Bramley Road
- The surrounding area is predominantly residential
- It is our understanding that the site benefits from full access rights over the road
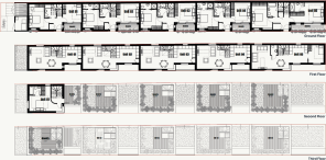
- A planning application has been granted to create 5 dwellings (3 x 2-bedroom and 2 x 3-bedroom)
- The total proposed GIA is approx. 444.5 sqm (4,785 sqft)
- The property is only a 4-minute walk from Oakwood Underground Station
- The vicinity of the site offers a variety of local amenities, including a shopping parade along Bramley Road
Description
The surrounding area is predominantly residential.
It is our understanding that the site benefits from full access rights over the road, however, we strongly encourage interested parties to carry out their own due diligence to confirm this.
A planning application has been granted to create 5 dwellings (3 x 2-bedroom and 2 x 3-bedroom), with a total proposed GIA of approx. 444.5 sqm (4,785 sqft).
The estimated CIL liability is approx. £38,684.24, and there is no S106.
The property is only a 4-minute walk from Oakwood Underground Station.
The vicinity of the site offers a variety of local amenities, including a shopping parade along Bramley Road.
Brochures
Oakwood Country Mews, Bramley Road, N14 4HX
NEAREST STATIONS
Distances are straight line measurements from the centre of the postcode- Oakwood Station0.1 miles
- Cockfosters Station0.7 miles
- Southgate Station1.1 miles
Notes
Disclaimer - Property reference OakwoodCountryMews. The information displayed about this property comprises a property advertisement. Rightmove.co.uk makes no warranty as to the accuracy or completeness of the advertisement or any linked or associated information, and Rightmove has no control over the content. This property advertisement does not constitute property particulars. The information is provided and maintained by GLPG, Marylebone. Please contact the selling agent or developer directly to obtain any information which may be available under the terms of The Energy Performance of Buildings (Certificates and Inspections) (England and Wales) Regulations 2007 or the Home Report if in relation to a residential property in Scotland.
Map data ©OpenStreetMap contributors.




