Algarve, Lagos, Portugal
- PROPERTY TYPE
Land
- BEDROOMS
4
- BATHROOMS
1
- SIZE
372,861 sq ft
34,640 sq m
Key features
- 4 bedrooms
- Total area: 34640 sqm
- House area: 81,5 sqm
- 1 bathrooms
- Construction year: - 1951
Description
Currently the land has an urban area of 235m2 with a traditional single story house of 81, 50m2 with 6 rooms (living/dining room, kitchen, 4 bedrooms and 1 bathroom) and a variety of trees such as fig trees & almond trees.
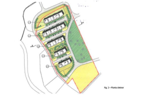
Ideal investment for construction of residential units.
About Lagos:
Lagos is historically associated with the Portuguese Discoveries and is today one of the Algarve's most attractive tourist centers, with exceptional beaches, cultural and religious heritage, as well as a dynamic nightlife. The historic center is almost entirely traffic-free, offering a wide range of shops and cultural establishments, restaurants, bars and cafés.
Today, Lagos' greatest attraction lies in the abundance and beauty of its beaches. You can choose between the long stretches of sand dunes of Meia Praia or smaller, sheltered beaches such as Praia do Camilo or Praia Dona Ana.
Faro International Airport is only an hour away via the A22 motorway.
REF: U477
REF: U477
Algarve, Lagos, Portugal
NEAREST AIRPORTS
Distances are straight line measurements- Faro(International)40.2 miles
Advice on buying Portuguese property
Learn everything you need to know to successfully find and buy a property in Portugal.
Notes
This is a property advertisement provided and maintained by Marcela Real Estate, Lagos (reference 286307_U477) and does not constitute property particulars. Whilst we require advertisers to act with best practice and provide accurate information, we can only publish advertisements in good faith and have not verified any claims or statements or inspected any of the properties, locations or opportunities promoted. Rightmove does not own or control and is not responsible for the properties, opportunities, website content, products or services provided or promoted by third parties and makes no warranties or representations as to the accuracy, completeness, legality, performance or suitability of any of the foregoing. We therefore accept no liability arising from any reliance made by any reader or person to whom this information is made available to. You must perform your own research and seek independent professional advice before making any decision to purchase or invest in overseas property.




