Freight Building, Mount Pleasant, 10 Liberty Centre, HA0 1TX

- PROPERTY TYPE
Apartment
- BEDROOMS
2
- BATHROOMS
1
- SIZE
Ask agent
- TENUREDescribes how you own a property. There are different types of tenure - freehold, leasehold, and commonhold.Read more about tenure in our glossary page.
Freehold
Key features
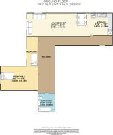
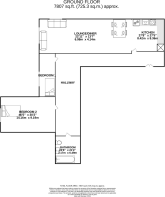
- 2 Bedrooms
- 1 Reception Room
- 1 Bathroom
- 700 sq. ft
- 242-Years Lease remaining
- Permit Parking
- Prime Location
Description
Property Hub Presents: A Charming 2-Bedroom Apartment
This delightful Second-floor 2-bedroom apartment offers a blend of modern comfort and convenience. The property benefits from ample natural light, creating a warm and inviting atmosphere throughout. The living area is perfect for entertaining or relaxing, complemented by a well-appointed kitchen ideal for preparing meals.
Situated in a desirable location, the apartment boasts excellent access to local amenities, schools, and transport links, making it a practical choice for both investors and first-time buyers. With a chain-free purchase and ready for immediate occupancy, this property presents an outstanding opportunity to secure a comfortable, low-maintenance lifestyle in a sought-after neighbourhood.
Contact us today to arrange a viewing and see all this apartment has to offer!
Address: Freight Building, 10 Liberty Centre, Mount Pleasant, HA0 1TX
Asking Price: £335,000
Tenure : Leasehold, 242 Years remaining
Ground Rent & Service Charge : Estimated £1490 per annum
Council Tax Band: C
EPC Rating: D
Disclaimer:-
Property Hub acts as the seller's agent for this property. While we make every effort to obtain accurate information from the seller, it is the responsibility of your conveyancer to ensure that any purchase agreement fully protects your position. If you become aware of any inaccuracies in the information provided, please notify us immediately.
In compliance with the UK's Anti-Money Laundering (AML) regulations, Property Hub is required to verify the identity of all prospective buyers once an offer is accepted. This verification is conducted using a third-party Identity Verification System. A nominal charge of £48 (per person), inclusive of VAT, applies for this service.
For further details, please refer to the terms and conditions section on our website or call our office.
- COUNCIL TAXA payment made to your local authority in order to pay for local services like schools, libraries, and refuse collection. The amount you pay depends on the value of the property.Read more about council Tax in our glossary page.
- Band: C
- PARKINGDetails of how and where vehicles can be parked, and any associated costs.Read more about parking in our glossary page.
- Permit
- GARDENA property has access to an outdoor space, which could be private or shared.
- Ask agent
- ACCESSIBILITYHow a property has been adapted to meet the needs of vulnerable or disabled individuals.Read more about accessibility in our glossary page.
- Ask agent
Freight Building, Mount Pleasant, 10 Liberty Centre, HA0 1TX
Add an important place to see how long it'd take to get there from our property listings.
__mins driving to your place
Get an instant, personalised result:
- Show sellers you’re serious
- Secure viewings faster with agents
- No impact on your credit score
Your mortgage
Notes
Staying secure when looking for property
Ensure you're up to date with our latest advice on how to avoid fraud or scams when looking for property online.
Visit our security centre to find out moreDisclaimer - Property reference 103231003141. The information displayed about this property comprises a property advertisement. Rightmove.co.uk makes no warranty as to the accuracy or completeness of the advertisement or any linked or associated information, and Rightmove has no control over the content. This property advertisement does not constitute property particulars. The information is provided and maintained by Property Hub, Wembley. Please contact the selling agent or developer directly to obtain any information which may be available under the terms of The Energy Performance of Buildings (Certificates and Inspections) (England and Wales) Regulations 2007 or the Home Report if in relation to a residential property in Scotland.
*This is the average speed from the provider with the fastest broadband package available at this postcode. The average speed displayed is based on the download speeds of at least 50% of customers at peak time (8pm to 10pm). Fibre/cable services at the postcode are subject to availability and may differ between properties within a postcode. Speeds can be affected by a range of technical and environmental factors. The speed at the property may be lower than that listed above. You can check the estimated speed and confirm availability to a property prior to purchasing on the broadband provider's website. Providers may increase charges. The information is provided and maintained by Decision Technologies Limited. **This is indicative only and based on a 2-person household with multiple devices and simultaneous usage. Broadband performance is affected by multiple factors including number of occupants and devices, simultaneous usage, router range etc. For more information speak to your broadband provider.
Map data ©OpenStreetMap contributors.





