
Southcliffe, Pattingham Road

- PROPERTY TYPE
Detached
- BEDROOMS
4
- BATHROOMS
2
- SIZE
Ask agent
- TENUREDescribes how you own a property. There are different types of tenure - freehold, leasehold, and commonhold.Read more about tenure in our glossary page.
Freehold
Description
Location - Perton Ridge is one of the most sought after addresses within the region and provides a wonderful, semi-rural setting which is within easy reach of several local business centres. The house is conveniently situated for easy access to a wide range of local everyday amenities and facilities in both Pattingham and Tettenhall village centres whilst there is easy access to Wolverhampton City Centre. Motor communications are excellent with the M5, M6, M6 Toll and M54 facilitating travel to Birmingham, Telford and the entire industrial West Midlands whilst national rail services run from Wolverhampton station (London Euston from approximately 100 minutes).
The area is well served by schooling in both sectors with numerous, highly regarded schools being nearby including Birchfield Preparatory School in Albrighton, St Dominics Grammar School in Brewood, Tettenhall College, Wolverhampton Grammar School and the Wolverhampton Girls' High School. There is also an excellent primary school in the centre of Pattingham.
Description - Southcliffe is a delightful property with an attractive, gabled front elevation which stands well back from the road behind a screened frontage with a dual entrance carriage driveway.
The property has been lovingly maintained over the years and is well presented throughout with rooms of generous proportions to both the ground and first floors. There is ample scope for extensions to both the ground and first floors (STPP) should buyers so wish to further enhance the scope of accommodation provided.
One of the principal attractions of the property is the superb grounds within which it stands with a large plot of just under 0.75 acres in total with a deep and wide frontage, level gardens to the rear and outstanding, far reaching views.
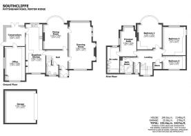
Accommodation - An enclosed tiled hung PORCH with double glazed doors and tiled floor has a double glazed front door opening into the HALL with oak strip flooring, coved ceiling and a CLOAKROOM with a fitted suite of WC and pedestal basin, tiled walls, double glazed and leaded windows to the front and an understairs storage cupboard. The DRAWING ROOM has a light triple aspect with double glazed and leaded windows to the front, a double glazed picture window to the rear framing the magnificent view, four leaded side windows and an attractive, open fireplace with marble surround and wooden frame and coved ceiling. There is an interconnecting leaded and glazed door to the DINING ROOM which is a well proportioned entertaining room with a double glazed and leaded bow window to the rear, oak strip flooring and coved ceiling. There is a large BREAKFAST KITCHEN with a light through aspect with double glazed and leaded windows to both the front and rear, ample space for informal dining, a comprehensive range of wall and base mounted cupboards together with a range of integrated appliances including electric hob, double electric oven, microwave, dishwasher and fridge and freezer, integrated ceiling lighting, ceiling coving, tiled floor, part tiled walls and a door into the CONSERVATORY which is fully double glazed with French doors to the garden and wiring for wall lights.
A glazed and leaded door from the conservatory opens into the OFFICE which is an ideal space for those wishing to work from home with a full range of office furniture including a fitted desk, wall shelving, cupboards and drawer and a light, corner aspect with double glazed and leaded windows to both the front and side.
A staircase rises from the hall to the first floor landing with access to the roof space, a double glazed and leaded front window and a built in cloaks / storage cupboard. The PRINCIPAL SUITE benefits from a double bedroom with a light, corner aspect with double glazed and leaded windows to both the side and rear which benefit from outstanding views, a fitted kneehole dressing table with chests of drawers to either side and an EN-SUITE BATHROOM with a fitted suite with a panelled bath, WC, bidet and pedestal basin, integrated ceiling lighting, built in wardrobes and shelved storage, integrated ceiling lighting and a chrome towel rail radiator. BEDROOM TWO is a large double room in size with a walk in double glazed and leaded bow window to the rear with lovely views, a kneehole dressing table with chest of drawers to one side and a wide bank of fitted wardrobes. BEDROOM THREE is a good double room in size with a light corner aspect with double glazed and leaded windows to both the rear and side, a range of quality fitted bedroom furniture including ample wardrobes space, kneehole dressing table, chests of drawers and coordinating bedside tables and integrated ceiling lighting. BEDROOM FOUR is a good room in size with a double glazed and leaded window to the front and a wide bank of fitted wardrobes with cupboards above. The HOUSE BATHROOM has a well appointed suite with a panelled bath, separate fully tiled shower and vanity unit with wash basin with cupboards and drawers beneath, part tiled walls, integrated ceiling lighting, a chrome towel rail radiator and there is a separate CLOAKROOM with a white suite of WC and wall hung wash basin, part tiled walls, a double glazed and leaded window and integrated ceiling lighting.
Outside - Southcliffe stands in an outstanding plot with a deep and private frontage which is well screened from the road. There is a DUAL CARRIAGE DRIVEWAY laid in brick paviours which provides ample off street parking and there is a semi-circular lawn with well stocked beds and borders and a matured front boundary. Southcliffe benefits from a DETACHED GARAGE for two cars and there is side access to the rear grounds.
To the rear of the house is a paved rear terrace with steps leading to the level principal REAR GARDEN which is laid to lawn with matured beds and borders and topiary bushes. Steps lead to the further, tiered gardens beyond and the garden benefits from absolutely beautiful views across miles of open farmland and countryside.
We are informed by the Vendors that mains water and electricity are connected, the central heating is oil fired and drainage is to a septic tank.
COUNCIL TAX BAND G – South Staffordshire
POSSESSION Vacant possession will be given on completion.
VIEWING Please contact the Tettenhall Office.
The property is FREEHOLD.
Please Note - The property was underpinned in part around thirty years ago.
Directions - Using the What3Words app:
///boost.flying.formal
Brochures
Southcliffe, Pattingham RoadBrochure- COUNCIL TAXA payment made to your local authority in order to pay for local services like schools, libraries, and refuse collection. The amount you pay depends on the value of the property.Read more about council Tax in our glossary page.
- Band: G
- PARKINGDetails of how and where vehicles can be parked, and any associated costs.Read more about parking in our glossary page.
- Yes
- GARDENA property has access to an outdoor space, which could be private or shared.
- Yes
- ACCESSIBILITYHow a property has been adapted to meet the needs of vulnerable or disabled individuals.Read more about accessibility in our glossary page.
- Ask agent
Southcliffe, Pattingham Road
Add an important place to see how long it'd take to get there from our property listings.
__mins driving to your place
Get an instant, personalised result:
- Show sellers you’re serious
- Secure viewings faster with agents
- No impact on your credit score



Your mortgage
Notes
Staying secure when looking for property
Ensure you're up to date with our latest advice on how to avoid fraud or scams when looking for property online.
Visit our security centre to find out moreDisclaimer - Property reference 33690550. The information displayed about this property comprises a property advertisement. Rightmove.co.uk makes no warranty as to the accuracy or completeness of the advertisement or any linked or associated information, and Rightmove has no control over the content. This property advertisement does not constitute property particulars. The information is provided and maintained by Berriman Eaton, Tettenhall. Please contact the selling agent or developer directly to obtain any information which may be available under the terms of The Energy Performance of Buildings (Certificates and Inspections) (England and Wales) Regulations 2007 or the Home Report if in relation to a residential property in Scotland.
*This is the average speed from the provider with the fastest broadband package available at this postcode. The average speed displayed is based on the download speeds of at least 50% of customers at peak time (8pm to 10pm). Fibre/cable services at the postcode are subject to availability and may differ between properties within a postcode. Speeds can be affected by a range of technical and environmental factors. The speed at the property may be lower than that listed above. You can check the estimated speed and confirm availability to a property prior to purchasing on the broadband provider's website. Providers may increase charges. The information is provided and maintained by Decision Technologies Limited. **This is indicative only and based on a 2-person household with multiple devices and simultaneous usage. Broadband performance is affected by multiple factors including number of occupants and devices, simultaneous usage, router range etc. For more information speak to your broadband provider.
Map data ©OpenStreetMap contributors.





