Old Basin, Bridgwater
- PROPERTY TYPE
Land
- SIZE
Ask agent
Key features
- Sale by Modern Auction (T&Cs apply)
- Subject to an undisclosed Reserve Price
- Buyers fees apply
- CIL Payment Paid in Full
- Full Planning Granted
- Foundations Built
- Short Distance From Bridgwater's Town Centre
- Easy M5 Access
Description
SUMMARY
IMMEDIATE DEVELOPMENT OPPORTUNITY!! The site has been started and FOOTINGS ARE IN for TWO four bedroom detached homes in a convenient location on the outskirts of Bridgwater and with great links. CIL has also been paid so a great opportunity to get building quickly!!
DESCRIPTION
**CIL payment of £18,434 paid in full*** Situated close to the town centre, our client has full planning permission granted for two, four bedroom detached properties.
The proposal is for the properties to have an air source heat pump supplying the heating and hot water and for there to be sewerage treatments plants for each home.
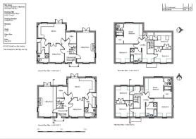
Each home has also been designed to have a double car port or garage, plus two further parking spaces each and a turning area. Internally the floor plan designs show to the ground floor, a dual aspect lounge, spacious kitchen, dining room, office, utility and shower room. To the first floor the floor plans show four bedrooms, a bathroom and en suite to the main bedroom.
As shown in the photographs our client has put in the ground work and built the raft foundations up to DPC (damp proof course) level. The sewerage treatments plants are not in and neither has any work been started to to the carports/garages.
The water application and connection fees have been paid for and so has the temporary electrical supply - altogether costing just short of £6,000. The warranty is Checkmate.
We advise intending purchasers to make their own enquiries with Sedgemoor District Council about the CIL payment (Community Infrastructure Levy) and for more information on the CIL Charging Schedule please visit sedgemoor.gov.uk/cil. However, our vendor has paid the CIL in full.
The application number to be used on the planning portal is 37/20/00056.
Auctioneer's Comments
This property is offered through Modern Method of Auction. Should you view, offer or bid your data will be shared with the Auctioneer, iamsold Limited. This method requires both parties to complete the transaction within 56 days, allowing buyers to proceed with mortgage finance (subject to lending criteria, affordability and survey).
The buyer is required to sign a reservation agreement and make payment of a non-refundable Reservation Fee of 4.5% of the purchase price including VAT, subject to a minimum of £6600.00 including VAT. This fee is paid in addition to purchase price and will be considered as part of the chargeable consideration for the property in the calculation for stamp duty liability. Buyers will be required to complete an identification process with iamsold and provide proof of how the purchase would be funded.
The property has a Buyer Information Pack containing documents about the property. The documents may not tell you everything you need to know, so you must complete your own due diligence before bidding. A sample of the Reservation Agreement and terms and conditions are contained within this pack. The buyer will also make payment of no more than £349 inc. VAT towards the preparation cost of the pack. Please confirm exact costs with the auctioneer.
The estate agent and auctioneer may recommend the services of other providers to you, in which they will be paid for the referral. These services are optional, and you will be advised of any payment, in writing before any services are accepted. Listing is subject to a start price and undisclosed reserve price that can change.
1. MONEY LAUNDERING REGULATIONS - Intending purchasers will be asked to produce identification documentation at a later stage and we would ask for your co-operation in order that there will be no delay in agreeing the sale.
2: These particulars do not constitute part or all of an offer or contract.
3: The measurements indicated are supplied for guidance only and as such must be considered incorrect.
4: Potential buyers are advised to recheck the measurements before committing to any expense.
5: Connells has not tested any apparatus, equipment, fixtures, fittings or services and it is the buyers interests to check the working condition of any appliances.
6: Connells has not sought to verify the legal title of the property and the buyers must obtain verification from their solicitor.
Brochures
Full DetailsOld Basin, Bridgwater
NEAREST STATIONS
Distances are straight line measurements from the centre of the postcode- Bridgwater Station0.9 miles
Notes
Disclaimer - Property reference TTN312426. The information displayed about this property comprises a property advertisement. Rightmove.co.uk makes no warranty as to the accuracy or completeness of the advertisement or any linked or associated information, and Rightmove has no control over the content. This property advertisement does not constitute property particulars. The information is provided and maintained by Connells, Taunton. Please contact the selling agent or developer directly to obtain any information which may be available under the terms of The Energy Performance of Buildings (Certificates and Inspections) (England and Wales) Regulations 2007 or the Home Report if in relation to a residential property in Scotland.
Auction Fees: The purchase of this property may include associated fees not listed here, as it is to be sold via auction. To find out more about the fees associated with this property please call Connells, Taunton on 01823 212322.
*Guide Price: An indication of a seller's minimum expectation at auction and given as a Guide Price or a range of Guide Prices. This is not necessarily the figure a property will sell for and is subject to change prior to the auction.
Reserve Price: Each auction property will be subject to a Reserve Price below which the property cannot be sold at auction. Normally the Reserve Price will be set within the range of Guide Prices or no more than 10% above a single Guide Price.
Map data ©OpenStreetMap contributors.








